
Immobilien Scott GmbH
Herr Thomas Scott
037 ···
Nr. anzeigenPreise & Kosten
Provision für Käufer
3.570,- € inkl. 19 % MwSt.
Lage
Plauen mit ca. 65.000 Einwohnern ist ein Oberzentrum im Südwesten des Freistaates Sachsen und die Kreisstadt des Vogtlandkreises. Die größte Stadt des Vogtlandes und fünftgrößte Stadt im Freistaat wurde durch die Plauener Spitze bekannt und gilt als architektonisch reizvoll. Das Objekt befindet sich in ruhiger Lage von Plauen...
Die Wohnung
Derzeitige Nutzung
vermietet
Wohnanlage
Energie & Heizung
Warum sehe ich diese Anzeige? – Du siehst diese Anzeige basierend auf Ihrer Navigation auf unserer Website und den Suchkriterien, die du verwendet hast.
Energieausweistyp
Verbrauchsausweis
Gebäudetyp
Wohngebäude
Baujahr laut Energieausweis
1900
Endenergieverbrauch
136,60 kWh/(m²·a) - Warmwasser enthalten
Weitere Energiedaten
Energieträger
Gas
Heizungsart
Zentralheizung
Details
Objektbeschreibung
Kurzbeschreibung
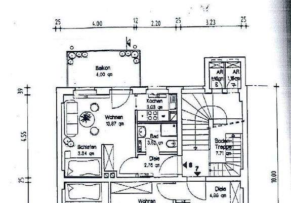
Objekt-Nr.: 111/24 - vermietete 1-Zimmer-ETW im DG mit Dusche, Balkon, Abstellraum und Bodenkammer in Plauen (Haselbrunn)
Objekt
Das 3-geschossige Mehrfamilienhaus mit ausgebautem DG wurde 1900 massiv errichtet und ist unterkellert. 1997/1998 erfolgten umfangreiche Sanierungs-/...
Ausstattung
Wohn-/Schlafraum Laminat, gefliestes Bad mit Dusche, Balkon, geflieste Kochnische mit Einbauküche, Abstellraum, Bodenkammer, Kellerabteil, Erdgas-Zentralheizung, Kunststoff-Fenster.
Weitere Infos siehe Details.
Preisinformation
20.000,- EUR, Ist-Mieteinnahmen pro Jahr: 2.880,00 EUR
Weitere Informationen
Sonstiges
Grundstück: Das Grundstück hat eine Größe von 230 m² und ist nicht befahrbar. Parkmöglichkeiten befinden sich vor dem Objekt bzw. den umliegenden Straßen. MEA 114/1.000. - - - Sonstiges: Die Wohnung ist ab 02/2026 wieder vermietet (Kalt 240 € / NK 160 € / Warmmiete 400 €). Das monatliche Hausgeld beträgt 206 €...
Anbieter der Immobilie
Immobilien Scott GmbH
Gabelsberger Straße 13, 08523 Plauen
Online-ID: 2n3u256
Referenznummer: 111-2--4
Finde Angebote wie dieses
Hier geht es zu unserem Impressum, den Allgemeinen Geschäftsbedingungen, den Hinweisen zum Datenschutz und nutzungsbasierter Online-Werbung.