
ohne-makler.net - Immobilien selbst vermarkten
Privat von Ben Zimmermann
Kontaktiere den Anbieter schriftlich, es ist keine Telefonnummer hinterlegt.
Preise & Kosten
Kaution
1.500,00
Warum sehe ich diese Anzeige? – Du siehst diese Anzeige basierend auf Ihrer Navigation auf unserer Website und den Suchkriterien, die du verwendet hast.
Lage
Die Wohnung liegt zentral und dennoch ruhig in Vellmar.
- Bus- und Straßenbahnhaltestellen in ca. 2 Minuten zu Fuß erreichbar
- Einkaufsmöglichkeiten in unter 10 Minuten zu Fuß
- Ruhiges Wohnumfeld mit grünem Innenhof
Die Wohnung
Wohnungslage
3. Geschoss
Bezug
01.03.2026
Wohnanlage
Energie & Heizung
Warum sehe ich diese Anzeige? – Du siehst diese Anzeige basierend auf Ihrer Navigation auf unserer Website und den Suchkriterien, die du verwendet hast.
Energieausweistyp
Bedarfsausweis
Gebäudetyp
Wohngebäude
Effizienzklasse
E
Endenergiebedarf
157,00 kWh/(m²·a)
Details
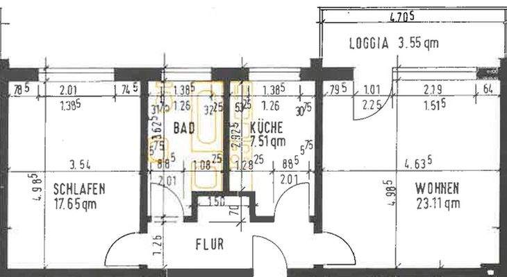
Objektbeschreibung
Diese freundliche und lichtdurchflutete Wohnung in der Nordstraße 19, 34246 Vellmar verbindet zentrale Lage mit angenehmer Ruhe: Trotz der Lage im Herzen von Vellmar genießen Sie einen entspannten Blick ins Grüne Richtung Hinterhof.
Die Wohnung wird aktuell teilrenoviert und zum 01.03. neu vermietet. Der Wohnbereich...
Ausstattung
Balkon, Keller, Duschbad, Einbauküche, Parkett
Bemerkungen:
Ausstattung (Highlights):
- Ca. 65 m² Wohnfläche
- 2 Zimmer
- Separate Küche
- Echtholzparkett in den Wohnräumen
- Großer Balkon mit Blick ins Grüne
- Badezimmer mit Badewanne und Dusche
- Keller + Dachboden-Abstellraum (zus. ca. 20 m²...
Preisinformation
Nettokaltmiete: 745,00 EUR
Weitere Informationen
Sonstiges
Makleranfragen nicht erwünscht. Nach § 7 UWG sind unaufgeforderte Kontaktaufnahmen durch Makler ohne ausdrückliche Einwilligung des Empfängers verboten!
ohne-makler (OM) ist weder Anbieter noch Vermittler der Immobilie. OM betreibt eine Plattform für Immobilieneigentümer, die unter anderem die...
Anbieter der Immobilie
ohne-makler.net - Immobilien selbst vermarkten
Humboldtstr. 25 A, 21509 Glinde
Privat von Ben Zimmermann
Dein Ansprechpartner
Kontaktiere den Anbieter schriftlich, es ist keine Telefonnummer hinterlegt.
Online-ID: 2n3yh5d
Referenznummer: 425866
Finde Angebote wie dieses
Hier geht es zu unserem Impressum, den Allgemeinen Geschäftsbedingungen, den Hinweisen zum Datenschutz und nutzungsbasierter Online-Werbung.