
Hausverwaltung Reißmann
Frau Steffi Reißmann
037 ···
Nr. anzeigenPreise & Kosten
Kaution
860,00
Warum sehe ich diese Anzeige? – Du siehst diese Anzeige basierend auf Ihrer Navigation auf unserer Website und den Suchkriterien, die du verwendet hast.
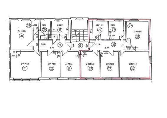
Die Wohnung
Bezug
01.05.2026
Wohnanlage
Energie & Heizung
Warum sehe ich diese Anzeige? – Du siehst diese Anzeige basierend auf Ihrer Navigation auf unserer Website und den Suchkriterien, die du verwendet hast.
Energieausweistyp
Verbrauchsausweis
Gebäudetyp
Wohngebäude
Baujahr laut Energieausweis
1954
Wesentliche Energieträger
Gas
Gültigkeit
05.12.2017 bis 04.12.2027
Effizienzklasse
C
Endenergieverbrauch
83,60 kWh/(m²·a)
Weitere Energiedaten
Energieträger
Gas
Heizungsart
Zentralheizung
Details
Objektbeschreibung
Johanngeorgenstadt ist eine Bergstadt im sächsischen Erzgebirgskreis.
Das Objekt befindet sich in ruhiger Lage, in unmittelbarer Nähe befinden sich diverse Einkaufsmöglichkeiten sowie eine Haltestelle für den Nahverkehr.
Ausstattung
Die Wohnung ist aufgeteilt in Flur, Küche, Bad, Wohnzimmer, Schlafzimmer sowie zwei weiteren Zimmern.
Das Tageslichtbad verfügt über eine Badewanne und Fliesen an Wänden und Boden. In allen übrigen Räumen wurden neue und moderne Laminatbodenbeläge eingebracht.
Der Waschmaschinenanschluss befindet sich im...
Weitere Informationen
Sonstiges
Info: Anzahl Etagen: 3
Besichtigungstermin
*** !!! ACHTUNG !!! ***
Bitte kontaktieren Sie uns zunächst per Mail. Am Ende dieser Anzeige finden Sie die Möglichkeit den Anbieter zu kontaktieren. Bitte unter Angabe einer Telefonnummer. Bei sofortiger Verfügbarkeit einer Wohnung, erfolgt die Besichtigung...
Anbieter der Immobilie
Hausverwaltung Reißmann
Bahnhofstr. 46, 08056 Zwickau
Online-ID: 2n3zk57
Finde Angebote wie dieses
Hier geht es zu unserem Impressum, den Allgemeinen Geschäftsbedingungen, den Hinweisen zum Datenschutz und nutzungsbasierter Online-Werbung.