

DFI-Immobilien UG
Herr Joachim Kuhn DFI-Immobilien UG
073 ···
Nr. anzeigenPreise & Kosten
Provision für Käufer
4,76 %
Lage
Die Immobilie befindet sich in einem ruhigen Wohnviertel in Krumbach, Schwaben. Die Wohnlage zeichnet sich durch eine familiäre Atmosphäre und eine gute Infrastruktur aus. In unmittelbarer Nähe finden sich Geschäfte, Schulen und öffentliche Verkehrsmittel, was das Viertel besonders beliebt bei Familien macht. Auch Parks und...
Das Haus
Kategorie
Doppelhaushälfte
Baujahr
1967
Energie & Heizung
Warum sehe ich diese Anzeige? – Du siehst diese Anzeige basierend auf Ihrer Navigation auf unserer Website und den Suchkriterien, die du verwendet hast.
Weitere Energiedaten
Energieträger
Öl
Heizungsart
Zentralheizung
Details
Objektbeschreibung
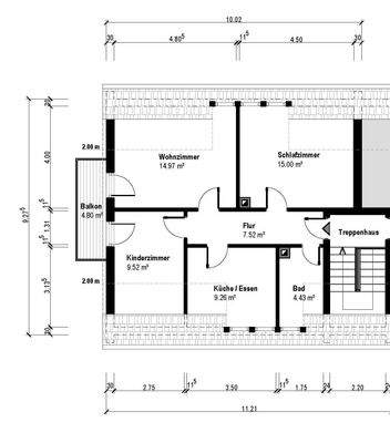
Diese modernisierte Doppelhaushälfte aus dem Jahr 1964 besteht aus 2 WE mit insgesamt 6 Zimmer, darunter 4 Schlafzimmer und 2 Badezimmer. Eine Zentralheizung sorgt für angenehme Wärme in allen Räumen. Der Keller bietet zusätzlichen Stauraum und die Grundstücksfläche von 301 m² lädt zum Verweilen im Freien ein.
Die...
Ausstattung
Fenster: Kunststoff-Isolierglas 2005 Einbau
Böden Laminat, Fliesen
Sanitär: EG Bad neu 2010
OG Bad 2008 neu
Heizung: Öl-Zentralheizung Einbau 2010
Kellerräume
Balkon
Terrasse
Weitere Informationen
Sonstiges
ollten wir Ihr Interesse geweckt haben und Sie haben Fragen oder möchten einen Besichtigungstermin vereinbaren, erreichen Sie uns unter den folgenden Kontaktdaten.
Wir freuen uns von Ihnen zu hören!
*************** Wichtig ***************
Für die Zusendung des Exposés / weitere Informationen zum Objekt...
Anbieter der Immobilie
DFI-Immobilien UG
Beckenkreuz 9/3, 89471 Laupheim

Online-ID: 2n44u56
Referenznummer: 86381
Finde Angebote wie dieses
Hier geht es zu unserem Impressum, den Allgemeinen Geschäftsbedingungen, den Hinweisen zum Datenschutz und nutzungsbasierter Online-Werbung.