
McMakler GmbH
Ihr McMakler Team
080 ···
Nr. anzeigenPreise & Kosten
Provision für Käufer
Die Provision i.H.v. 3,57 % inkl. MwSt. ist mit Kaufvertragsbeurkundung fällig, sofern der Verkaufspreis über 83.000,00 € liegt.
Liegt der Verkaufspreis dagegen bei/unter 83. Weitere Informationen siehe Provisionshinweis.
Lage
Lage: Attraktive Wassernähe bietet ruhige und entspannende Umgebung für Ruhesuchende
Bildung und Betreuung: Mehrere Kindergärten und einige Schulen in der näheren Umgebung (Wandlitz)
Nahversorgung: Supermarkt, Apotheke, Postfiliale und Bankfiliale in Wandlitz
Anbindung: Autobahn schnell erreichbar, Busstation...
Das Renditeobjekt
Baujahr
2023
Bezug
nach Absprache
Energie & Heizung
Warum sehe ich diese Anzeige? – Du siehst diese Anzeige basierend auf Ihrer Navigation auf unserer Website und den Suchkriterien, die du verwendet hast.
Energieausweistyp
Bedarfsausweis
Gebäudetyp
Wohngebäude
Baujahr laut Energieausweis
2023
Wesentliche Energieträger
Gas,Strom
Effizienzklasse
A
Endenergiebedarf
44,50 kWh/(m²·a)
Weitere Energiedaten
Energieträger
Elektro, Gas
Heizungsart
Zentralheizung
Details
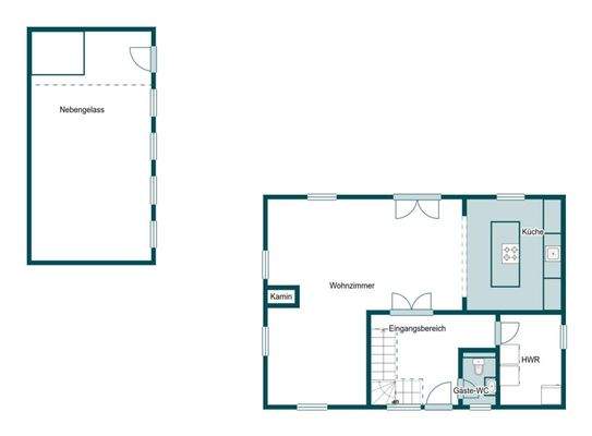
Objektbeschreibung
Objektnr: 1068250
Fußläufig zum Rahmersee gelegen präsentiert sich dieses moderne Einfamilienhaus als ideale Wahl für all jene, die eine naturnahe Lage mit gleichzeitig schneller Anbindung in die Berliner Innenstadt suchen. Zahlreiche Seen und Wälder befinden sich in unmittelbarer Umgebung und laden gerade im Sommer...
Ausstattung
+ Die Immobilie präsentiert sich in einem neuwertigen Zustand: Baujahr 2023
+ Hochwertige Ausstattung: Unter anderem Fußbodenheizung, Solarthermieanlage, Lüftungsanlage, dreifachverglaste Kunststofffenster
+ Wohnfläche von ca. 147 m² und eine Grundfläche von ca. 213 m²
+ Entspannung im Freien: Der Garten auf ca. 517...
Weitere Informationen
Provisionshinweis
Die Provision i.H.v. 3,57 % inkl. MwSt. ist mit Kaufvertragsbeurkundung fällig, sofern der Verkaufspreis über 83.000,00 € liegt.
Liegt der Verkaufspreis dagegen bei/unter 83.000,00 €, ist die fest vereinbarte Mindestprovision i.H.v. mind. 5.950,00 € inkl. MwSt. mit Kaufvertragsbeurkundung fällig...
Anbieter der Immobilie
McMakler GmbH
Am Postbahnhof 17, 10243 Berlin
Online-ID: 2n4kc52
Referenznummer: 53d419cd31
Finde Angebote wie dieses
Hier geht es zu unserem Impressum, den Allgemeinen Geschäftsbedingungen, den Hinweisen zum Datenschutz und nutzungsbasierter Online-Werbung.