
AmRhein ImmobilienManagement GmbH
Herr Max Veltens
017 ···
Nr. anzeigenPreise & Kosten
Provision für Käufer
Die Courtage in Höhe von 2,38% (inkl. MwSt) beläuft sich auf den Kaufpreis.
Die Immobilie
Zu diesem Angebot wurden vom Anbieter keine weiteren Daten hinterlegt. Für weitere Informationen bitte den Anbieter kontaktieren.
Nach Informationen fragenDetails
Objektbeschreibung
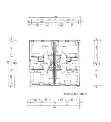
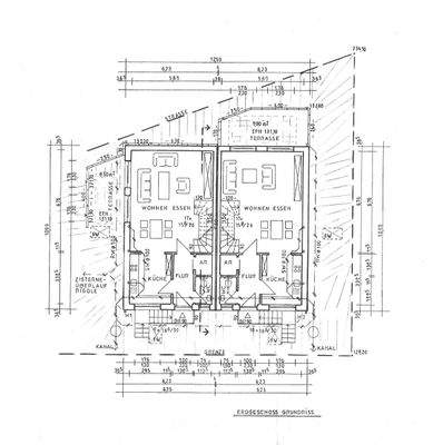
Zum Verkauf steht ein attraktives Baugrundstück mit bereits erteilter Baugenehmigung für zwei moderne Doppelhaushälften. Die Planung der Doppelhäuser erfolgt ohne Keller, jedoch mit großzügigen und gut durchdachten Grundrissen. Jede Haushälfte bietet ca. 148 m² Wohnfläche und zusätzlich ca. 21 m² Nutzfläche, ideal für...
Ausstattung
Bei Interesse können weitere Unterlagen gerne zur Verfügung gestellt werden.
Weitere Informationen
Sonstiges
Die oben angegebene Außenprovision i.H.v 2,38% (inkl. MwSt) ist mit der notariellen Beurkundung des Kaufvertrages durch den Käufer fällig.
Die hier genannten Daten und Fakten beruhen auf den Angaben des Verkäufers. Für die Richtigkeit und Vollständigkeit wird keine Gewähr übernommen.
Stichworte
GRZ...
Anbieter der Immobilie
AmRhein ImmobilienManagement GmbH
Neuenhöfer Allee 49-51, 50935 Köln
Online-ID: 2n4ra59
Referenznummer: AMRhein_2026_386
Finde Angebote wie dieses
Hier geht es zu unserem Impressum, den Allgemeinen Geschäftsbedingungen, den Hinweisen zum Datenschutz und nutzungsbasierter Online-Werbung.