

GTH GmbH
Herr Jörg Bartel
+49 ···
Nr. anzeigenPreise & Kosten
Provision für Käufer
Käuferprovision beträgt 4,76 % (inkl. MwSt.) des
beurkundeten Kaufpreises
Lage
Willkommen im petit Paris - Willkommen in Görliwood!
Zwischen historischen Bauten, zahlreichen Denkmälern und modernen, weltoffenem Ambiente
verspricht die östlichste Stadt Deutschlands, ein neuer Hotspot für Anleger zu werden.
Eingebettet in das Tal der Königshainer Berge bietet die Europastadt Görlitz zusammen...
Das Haus
Kategorie
Mehrfamilienhaus
Baujahr
1720
Energie & Heizung
Warum sehe ich diese Anzeige? – Du siehst diese Anzeige basierend auf Ihrer Navigation auf unserer Website und den Suchkriterien, die du verwendet hast.
Energieausweis: für diesen Gebäudetyp nicht notwendig
Details
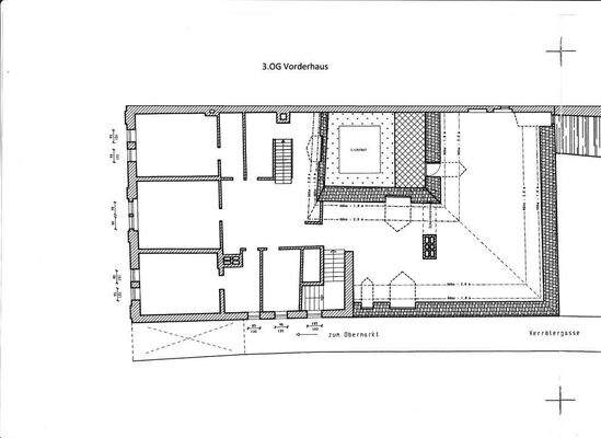
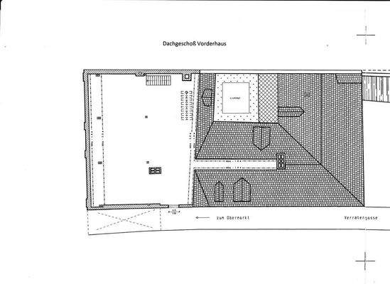
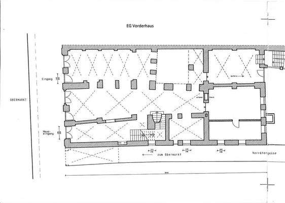
Objektbeschreibung
Womöglich erstmals um 1675 erbaut, präsentiert sich das wohl legendärste Wohn-und
Geschäftshaus in geschlossener Bebauungsreihe, am Görlitzer Obermarkt.
Bereits die Fassade des historische Ensemble aus Haupt- und winkeligem Hinterhaus besticht
mit barocken Elementen und zeigt einmal mehr, die baugeschichtliche, sowie...
Ausstattung
Bereits das Baujahr des Objektes versinnbildlicht die baugeschichtliche Bedeutung. Wo in
gängiger Literatur von 1675 gesprochen wird, ist bekannt, dass nach dem großem Görlitzer
Stadtbrand ein Wiederaufbau um 1719 stattfand. Vor allem die zahlreichen barocken Details
des Objektes widersprechen dieser Theorie nicht...
Preisinformation
2 Stellplätze
Weitere Informationen
Sonstiges
Alle Angaben beruhen auf Vorabinformationen des Eigentümers und sind ohne Gewähr. Irrtum, Zwischenverkauf und Preisänderung bleiben ausdrücklich vorbehalten.
Der genaue Preis und die Nebenkosten können variieren. Nutzungsarten sowie anliegende Medien erfragen Sie bitte im persönlichen Gespräch oder bekommen...
Anbieter der Immobilie
GTH GmbH
Neißstraße 9, 02826 Görlitz

Online-ID: 2n4uk55
Referenznummer: 46 (1/46)
Finde Angebote wie dieses
Hier geht es zu unserem Impressum, den Allgemeinen Geschäftsbedingungen, den Hinweisen zum Datenschutz und nutzungsbasierter Online-Werbung.