

CUBION Immobilien AG
Herr Marvin Prochowski
+49 ···
Nr. anzeigenPreise & Kosten
Provision für Mieter
provisionsfrei
Warum sehe ich diese Anzeige? – Du siehst diese Anzeige basierend auf Ihrer Navigation auf unserer Website und den Suchkriterien, die du verwendet hast.
Lage
Der Büropark Springorum steht für modernes Arbeiten in strategisch günstiger Lage. Direkt an der A448 und nur wenige Minuten von den Autobahnen A40, A43 und A44 entfernt, ist er hervorragend angebunden. Diverse Bushaltestellen sorgen zudem für eine optimale Erreichbarkeit ohne Auto. Das Umfeld punktet mit modernen...
Büro-/Praxisfläche
Baujahr
1996
Bezug
nach Vereinbarung
Energie & Heizung
Warum sehe ich diese Anzeige? – Du siehst diese Anzeige basierend auf Ihrer Navigation auf unserer Website und den Suchkriterien, die du verwendet hast.
Weitere Energiedaten
Heizungsart
Zentralheizung
Details
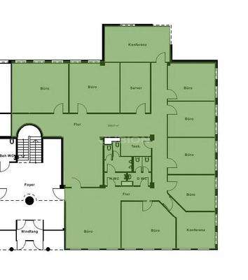
Objektbeschreibung
Im etablierten Büropark Springorum präsentieren sich diese vielseitig nutzbaren Büroflächen als überzeugende Adresse für Unternehmen, die Wert auf eine professionelle Arbeitsumgebung, flexible Raumkonzepte und eine verkehrsgünstige Lage legen. Insgesamt stehen rund 1.057 m² zur Verfügung, verteilt auf das Erdgeschoss mit etwa...
Ausstattung
Bodenbelag: Laminat
EDV-Verkabelung: Mietersache
Kabelführung: Brüstungskanäle
Kühlung: Teilklimatisierung
Sonnenschutz: innen liegend
Küche: Teeküche
Beleuchtung: Rasterdecken-Einbauleuchten
Aufzug: Personenaufzug
Heizung: Gaszentralheizung
Barrierearm: ebenerdiger Hauszugang
Achsmaß: ca. 4,00...
Weitere Informationen
Sonstiges
GEG 2020: Ein Energieausweis liegt zur Zeit nicht vor.
Dieses Angebot ist provisionsfrei für den Mieter.
Alle Informationen in diesem Exposé beruhen auf Angaben, die wir vom Vermieter erhalten haben. Für Richtigkeit und Vollständigkeit übernehmen wir keine Gewähr. Zwischenvermietung vorbehalten. Die...
Anbieter der Immobilie

CUBION Immobilien AG
Akazienallee 65, 45478 Mülheim

Online-ID: 2n5cl52
Referenznummer: 1396/G1/E1
Finde Angebote wie dieses
Hier geht es zu unserem Impressum, den Allgemeinen Geschäftsbedingungen, den Hinweisen zum Datenschutz und nutzungsbasierter Online-Werbung.