HBI-Immobilienvertriebs GmbH

Herr Markus Krüger

Findorff / Gepflegtes Mehrfamilienhaus in zentraler Lage mit möglicher Eigennutzung

€ 580.000
Kaufpreis
201 m²
Wohnfläche ca.
10
Zimmer
128,50 m²
Grundstücksfl. ca.

Der Anbieter dieses Objekts hat gegenüber der AVIV Germany GmbH als Betreiber dieses Online-Marktplatzes erklärt, nicht als Unternehmer im Sinne des § 1 KSchG zu handeln. Die im Verbraucherschutzrecht der Union verankerten Verbraucherrechte (insbesondere Informationspflichten und Rücktritts- bzw. Widerrufsrechte) finden auf den Vertrag zwischen dem Anbieter des Objekts und Ihnen (dem Interessenten) keine Anwendung.

Gewerblicher Anbieter

Der Anbieter dieses Objekts hat gegenüber der AVIV Germany GmbH als Betreiber dieses Online-Marktplatzes erklärt, als Unternehmer im Sinne des § 1 KSchG zu handeln.

AdresseStraße nicht freigegeben
28215 Bremen 
(Findorff-Bürgerweide)
Auf Karte ansehen

Preise & Kosten

Kaufpreis € 580.000

Provision für Käufer

5,95% inkl. 19% MwSt.

Lage

Der Stadtteil Findorff gehört zu den Toplagen Bremens und liegt sehr zentral, in unmittelbarer Nähe der Bremer Bürgerweide und der Bremer Stadthalle.

In direkter Nachbarschaft sind diverse Geschäfte für den täglichen Bedarf sowie Cafés und Restaurants zu finden.
Besonders bekannt unter Kulturliebhabern ist das...

Mehr anzeigen

Das Haus

Kategorie

Mehrfamilienhaus

Baujahr

1957

Bezug

sofort

Derzeitige Nutzung

vermietet

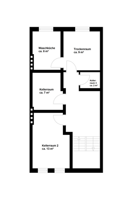
  • voll unterkellert
  • Garten, Balkon
  • Bad mit Dusche
  • Einbauküche
  • Böden: Fliesenboden, Laminat
  • Weitere Räume: Abstellraum

Energie & Heizung

A+
A
B
C
D
E
F
G
H
0 25 50 75 100 125 150 175 200 225 250 +

Energieausweistyp

Bedarfsausweis

Gebäudetyp

Wohngebäude

Wesentliche Energieträger

Gas

Gültigkeit

25.11.2025 bis 24.11.2035

Effizienzklasse

E

Endenergiebedarf

133,60 kWh/(m²·a)

Weitere Energiedaten

Energieträger

Gas

Heizungsart

Etagenheizung

Details

Objektbeschreibung

Dieses ansprechende und gepflegte Mehrfamilienhaus aus dem Jahr 1957 liegt im begehrten Stadtteil Bremen-Findorff und bietet eine Wohn- und Nutzfläche von ca. 245 m².

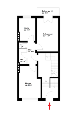
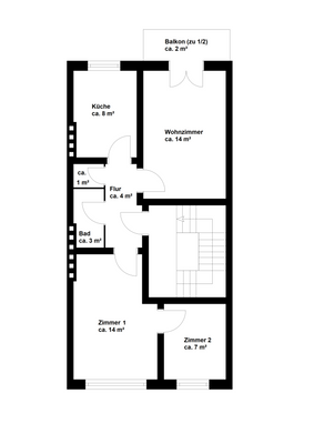
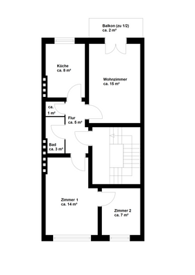
Die vier Wohneinheiten verfügen jeweils über zwei bis drei Zimmer, eine Küche, ein Bad und bis auf die Dachgeschosswohnung über einen Balkon.
Die...

Mehr anzeigen

Ausstattung

- Rollläden an allen Fenstern zur Straße
- Rollläden an allen Balkontüren
- Rollladen an der Hoftür, neu
- Alle Wohnungen verfügen über einen Sat- Anschluss mit Nutzung im Wohn- oder Schlafzimmer
- Jeder Balkon verfügt über eine Steckdose
- Duschtrennwand je Bad
- Einbauküchen je Wohnung
- 2015...

Mehr anzeigen

Weitere Informationen

Stichworte
Anzahl Balkone: 1, Bundesland: Bremen, modernisiert: 2021, modernisiert

Anbieter der Immobilie

Partner

HBI-Immobilienvertriebs GmbH

Schwachhauser Heerstraße 144, 28213 Bremen

user

Herr Markus Krüger

Dein Ansprechpartner

Anbieter-Website Anbieter-Profil Anbieter-Impressum

Online-ID: 2n5ll56

Referenznummer: 130001769

Finde Angebote wie dieses

imageimageimage

Hier geht es zu unserem Impressum, den Allgemeinen Geschäftsbedingungen, den Hinweisen zum Datenschutz und nutzungsbasierter Online-Werbung.