
BETTERHOMES Deutschland GmbH
004 ···
Nr. anzeigenPreise & Kosten
Provision für Käufer
3.56 % inkl. MwSt.
Lage
befindet sich in ruhiger Lage mit direkten Anbindung an der A 96
Die Industriefläche
Kategorie
Lagerhalle
Details
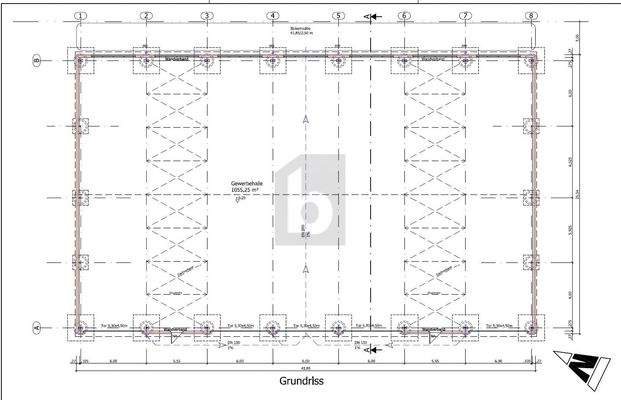
Objektbeschreibung
Die moderne Halle in Westerheim bietet mit ihren lichtdurchfluteten Räumen und der optimalen Lage direkt an der A 96 ein ideales Arbeitsumfeld. Der Neubau besticht durch seine großzügige Grundstücksfläche von 2170 m², fünf Toren und einer effizienten Dunkelstrahlerheizung. Keine störenden Stützen behindern die Nutzung des...
Weitere Informationen
Stichworte
Stellplatz vorhanden, Nutzfläche: 1.055,00 m²
Anbieter der Immobilie
Online-ID: 2n5qu52
Referenznummer: 297721
Finde Angebote wie dieses
Hier geht es zu unserem Impressum, den Allgemeinen Geschäftsbedingungen, den Hinweisen zum Datenschutz und nutzungsbasierter Online-Werbung.