
Deussen Immobilien GmbH
Herr Christian Deussen
+49 ···
Nr. anzeigenPreise & Kosten
Kaution
3.0
Warum sehe ich diese Anzeige? – Du siehst diese Anzeige basierend auf Ihrer Navigation auf unserer Website und den Suchkriterien, die du verwendet hast.
Lage
Die angebotene Immobilie befindet sich in einer gepflegten und ruhigen Wohnlage von Düsseldorf-Benrath, einem der südlichen Stadtteile Düsseldorfs, vis a vis des Paulsmühlenquartier. Benrath, insbesondere bekannt durch sein weltberühmtes Schloss und den Schlosspark sowie seine gemütliche Fußgängerzone als Haupteinkaufstrasse...
Die Wohnung
Wohnungslage
1. Geschoss
Bezug
sofort
Wohnanlage
Energie & Heizung
Warum sehe ich diese Anzeige? – Du siehst diese Anzeige basierend auf Ihrer Navigation auf unserer Website und den Suchkriterien, die du verwendet hast.
Energieausweistyp
Bedarfsausweis
Gebäudetyp
Wohngebäude
Wesentliche Energieträger
Strom
Gültigkeit
25.08.2025 bis 24.08.2035
Effizienzklasse
B
Endenergiebedarf
49,53 kWh/(m²·a)
Weitere Energiedaten
Energieträger
Elektro
Details
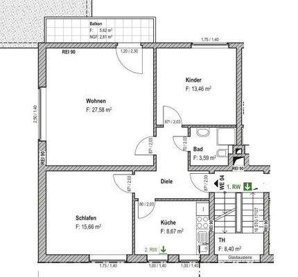
Objektbeschreibung
Gelegen im 1. Obergeschoss eines soeben kernsanierten Mehrfamilienhauses, steht die sehr gut geschnittene Wohnung als Erstbezug nach Kernsanierung ab 01.02.2026 zur Vermietung als Erstbezug nach Kernsanierung.
Sie teilt sich wie folgt auf:
Wohnraum mit Balkon, Schlafzimmer, Kinderzimmer, Küche, Diele...
Ausstattung
Die Ausstattung ist als sehr gut und hochwertig zu bezeichnen, so u.a.
- Hochwertiger Parkettboden als Eichendielen
- glatt verputzte Wände
- Bad mit großformatigen Fliesen und bodengleicher Dusche
- Fußbodenheizung
und verschiedenes mehr
Weitere Informationen
Sonstiges
Eine Besichtigung ist jederzeit nach Terminabsprache mit unserem Büro möglich.
Mieten oder vermieten, kaufen oder verkaufen - vertrauen Sie bei Ihrer Immobilienentscheidung auf die Kompetenz der DEUSSEN Immobilien GmbH. Seit fast 50 Jahren am Markt steht der Name DEUSSEN für Qualität und...
Anbieter der Immobilie
Online-ID: 2n67s54
Referenznummer: 167695
Finde Angebote wie dieses
Hier geht es zu unserem Impressum, den Allgemeinen Geschäftsbedingungen, den Hinweisen zum Datenschutz und nutzungsbasierter Online-Werbung.