LABIN d.o.o.

Karolina Mercep

P4 - A1-3BD PENTHOUSE with ROOF TERRACE - ARBANIJA RESORT

€ 650.000
Kaufpreis
k.A.
Wohnfläche
4
Zimmer

Der Anbieter dieses Objekts hat gegenüber der AVIV Germany GmbH als Betreiber dieses Online-Marktplatzes erklärt, nicht als Unternehmer im Sinne des § 1 KSchG zu handeln. Die im Verbraucherschutzrecht der Union verankerten Verbraucherrechte (insbesondere Informationspflichten und Rücktritts- bzw. Widerrufsrechte) finden auf den Vertrag zwischen dem Anbieter des Objekts und Ihnen (dem Interessenten) keine Anwendung.

Gewerblicher Anbieter

Der Anbieter dieses Objekts hat gegenüber der AVIV Germany GmbH als Betreiber dieses Online-Marktplatzes erklärt, als Unternehmer im Sinne des § 1 KSchG zu handeln.

AdresseStraße nicht freigegeben
21220 Trogir - Okolica 
Auf Karte ansehen

Preise & Kosten

Kaufpreis € 650.000

Provision für Käufer

Bitte beachte, das Angebot kann bei Vertragsabschluss die Zahlung einer Provision beinhalten. Weitere Informationen erhältst Du vom Anbieter.

Lage

Die Wohnung

Wohnungslage

2. Geschoss

Wohnanlage

  • Baujahr: 2026

Details

Objektbeschreibung

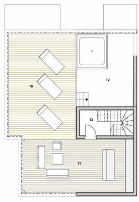
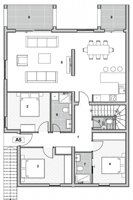
Exclusive Penthouse with Private Roof Terrace - Arbanija Resort, Dalmatia

For sale is a unique penthouse A5 in building P4, located in the first row of buildings with direct view in the prestigious Arbanija Resort, in the heart of Dalmatia. The apartment is located on the second floor and features a private roof...

Mehr anzeigen

Weitere Informationen

Stichworte
Gesamtfläche: 237,00 m², Anzahl der Schlafzimmer: 3, Anzahl der Badezimmer: 2, Anzahl der separaten WCs: 1, Anzahl der Wohn-Schlafzimmer: 1, 2 Etagen, Nebenzentrumslage

Anbieter der Immobilie

Partner

LABIN d.o.o.

Prilaz Kikova 4, 52220 LABIN

user

Karolina Mercep

Dein Ansprechpartner

Anbieter-Website Anbieter-Profil Anbieter-Impressum

Online-ID: 2n6jc5a

Referenznummer: 3160-147https://newhorizon.hr/express_listings#

Finde Angebote wie dieses

imageimageimage

Hier geht es zu unserem Impressum, den Allgemeinen Geschäftsbedingungen, den Hinweisen zum Datenschutz und nutzungsbasierter Online-Werbung.