

Sparkasse Chemnitz, Immobilien, in Vertretung der LBS IMMOBILIEN GMBH Nordost
Frau Salome Frank
037 ···
Nr. anzeigenPreise & Kosten
Provision für Käufer
3,57 % inkl. MwSt.
Lage
Willkommen im Stadtteil Markersdorf, im Süden von Chemnitz gelegen. An Markersdorf grenzen die Stadtteile Helbersdorf, Altchemnitz, Harthau, Klaffenbach, Hutholz und Morgenleite an. Die Plattenneubauten des früheren "Fritz-Heckert-Gebietes" umsäumen den alten Dorfkern von Markersdorf. Ebenso die Baugebiete an der Morgenleite...
Das Haus
Kategorie
Stadthaus
Baujahr
2016
Energie & Heizung
Warum sehe ich diese Anzeige? – Du siehst diese Anzeige basierend auf Ihrer Navigation auf unserer Website und den Suchkriterien, die du verwendet hast.
Energieausweistyp
Bedarfsausweis
Gebäudetyp
Wohngebäude
Baujahr laut Energieausweis
2016
Wesentliche Energieträger
Elektroenergie
Gültigkeit
17.03.2016 bis 16.03.2026
Effizienzklasse
A+
Endenergiebedarf
21,00 kWh/(m²·a)
Weitere Energiedaten
Haustyp
Massivhaus
Energieträger
Elektro
Heizungsart
Fußbodenheizung, Luft-/Wasser-Wärmepumpe
Details
Objektbeschreibung
Ein tolles Angebot für alle Familien oder die noch eine gründen möchten! Das seltene Angebot am Markt könnte Ihnen gehören. Die im Jahr 2016 neu gebaute Stadtvilla besticht im modernen und zeitlosen Design sowie der urbanen und dennoch ruhigen Lage. Sie möchten ein "neueres" Eigenheim aber sich nicht mit dem Neubau...
Ausstattung
. Baujahr 2016, freistehendes Einfamilienhaus Typ Stadtvilla
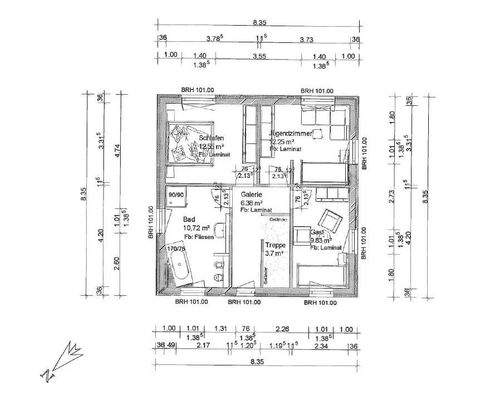
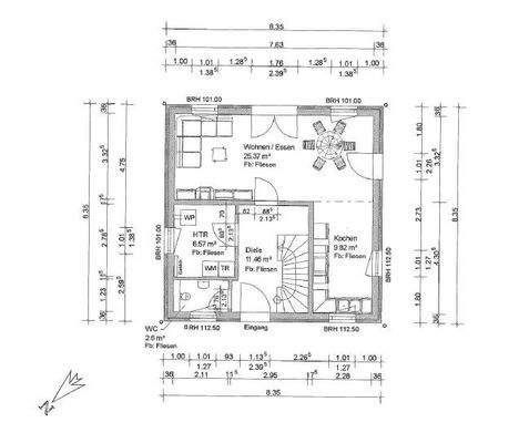
. ca. 111 m² Wohnfläche
. ca. 711 m² Grundstücksfläche
. 4 Zimmer (Wohnzimmer, Schlafzimmer, Kinderzimmer, Arbeitszimmer)
. halboffene Küche zum Wohnzimmer mit moderner Einbauküche in Farbe Weiß
. Steinboden im EG, Laminat im OG, Fliesen im Bad und...
Weitere Informationen
Sonstiges
Alle Angaben haben wir vom Auftraggeber erhalten. Für deren Richtigkeit können wir keine Gewähr übernehmen. Einen Zwischenverkauf behält sich der Auftraggeber/Verkäufer ausdrücklich vor.
Wir bitten um Verständnis, dass wir nur vollständige, schriftliche Anfragen (E-Mail, Fax, Brief) mit Namen, Anschrift...
Anbieter der Immobilie
Sparkasse Chemnitz, Immobilien, in Vertretung der LBS IMMOBILIEN GMBH Nordost
Bahnhofstraße 51, 09111 Chemnitz

Online-ID: 2n6le59
Referenznummer: 170-2918
Finde Angebote wie dieses
Hier geht es zu unserem Impressum, den Allgemeinen Geschäftsbedingungen, den Hinweisen zum Datenschutz und nutzungsbasierter Online-Werbung.