

DAHLER Osnabrück
Herr Sören Röttger
+49 ···
Nr. anzeigenPreise & Kosten
Kaution
8.250,00
Provision für Mieter
3 Monatskaltmieten zzgl. der gesetzlichen MwSt.
Warum sehe ich diese Anzeige? – Du siehst diese Anzeige basierend auf Ihrer Navigation auf unserer Website und den Suchkriterien, die du verwendet hast.
Lage
Die Krahnstraße, das Herz der Osnabrücker Altstadt und "Heimliche Hauptstraße", präsentiert mit Wohn- und Geschäftshäusern einen bunten Branchenmix aus teils inhabergeführten, teils filialisierten Geschäften. Hier finden Sie unter anderem die Firmen Prelle, Foto Erhardt, Peek & Cloppenburg, Schäffer, Restaurant Nola...
Die Ladenfläche
Kategorie
Laden
Bezug
01.02.2026
Erdgeschoss
Energie & Heizung
Warum sehe ich diese Anzeige? – Du siehst diese Anzeige basierend auf Ihrer Navigation auf unserer Website und den Suchkriterien, die du verwendet hast.
Wärme
Energieausweistyp
Verbrauchsausweis
Gebäudetyp
Nicht-Wohngebäude
Baujahr laut Energieausweis
2001
Wesentliche Energieträger
ERDGAS_LEICHT
Gültigkeit
bis 09.07.2027
Endenergieverbrauch (Wärme)
149,60 kWh/(m²·a)
Details
Objektbeschreibung
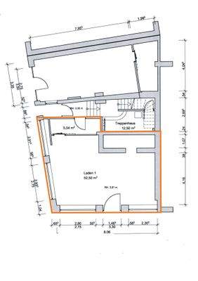
Das hier zur Anmietung angebotene Ladenlokal befindet sich in werbewirksamer Ecklage der Krahn- und der Hakenstraße. Beide Straßenfronten bieten jeweils zwei große Schaufenster und Breiten von ca. 7 bzw. ca. 8 Metern. Neben eines modernen Verkaufsraumes befindet sich im 1. Obergeschoss ein Lager bzw. Personalraum von ca. 9 m²...
Preisinformation
Nettokaltmiete: 2.750,00 EUR
Weitere Informationen
Stichworte
Nutzfläche: 10,00 m², Ladenfläche: 60,00 m²
Anbieter der Immobilie
DAHLER Osnabrück
Nikolaiort 5 a, 49074 Osnabrück

Online-ID: 2n79p52
Referenznummer: DC-OSN668368
Finde Angebote wie dieses
Hier geht es zu unserem Impressum, den Allgemeinen Geschäftsbedingungen, den Hinweisen zum Datenschutz und nutzungsbasierter Online-Werbung.