

Engel & Völkers - Schleswig
Herr Manfred Habicher
046 ···
Nr. anzeigenPreise & Kosten
Provision für Käufer
Die Käufercourtage in Höhe von 3,57 % auf den Kaufpreis einschließlich gesetzlicher Umsatzsteuer ist bei notariellem Vertragsabschluss verdient und fällig.
Lage
Ca. 4,2 km südöstlich von Nortorf und ca. 8 km nordwestlich von Neumünster befindet sich die Gemeinde Timmaspe mit Ihren ca. 1.100 Einwohnern auf ca. 1.540 ha. Die verkehrsgünstige Lage und die gute Infrastruktur haben in den vergangenen Jahren eine hohe Nachfrage nach Bauland erzeugt. Der Schulverband Nortorf unterhält in...
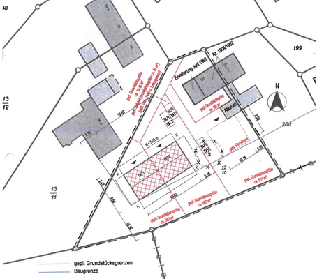
Das Grundstück
Energie & Heizung
Warum sehe ich diese Anzeige? – Du siehst diese Anzeige basierend auf Ihrer Navigation auf unserer Website und den Suchkriterien, die du verwendet hast.
Energieausweis: für diesen Gebäudetyp nicht notwendig
Details
Objektbeschreibung
Das angebotene Grundstück befindet sich in attraktiver, ruhiger Lage der Gemeinde Timmaspe und vereint naturnahes Wohnen mit einer sehr guten Anbindung an die umliegenden Zentren. Timmaspe liegt rund 8 km südlich von Neumünster sowie etwa 4,2 km südöstlich von Nortorf und profitiert damit von einer ausgewogenen Mischung aus...
Anbieter der Immobilie

Online-ID: 2n7e558
Referenznummer: W-0480TW
Finde Angebote wie dieses
Hier geht es zu unserem Impressum, den Allgemeinen Geschäftsbedingungen, den Hinweisen zum Datenschutz und nutzungsbasierter Online-Werbung.