

LINK Immobilien GmbH
Herr Thomas Widder
+49 ···
Nr. anzeigenPreise & Kosten
Provision für Käufer
3,57 % inkl. MwSt aus dem notariell beurkundeten Kaufpreis
Lage
Die Immobilie befindet sich in zentraler Lage im Stuttgarter Stadtteil Wangen.
In der Umgebung finden Sie eine Vielzahl von Einkaufsmöglichkeiten, darunter Supermärkte, Bäckereien und Fachgeschäfte, die fußläufig erreichbar sind. Auch die Anbindung an den öffentlichen Nahverkehr ist ausgezeichnet. Die Haltestellen der...
Das Renditeobjekt
Kategorie
Mehrfamilienhaus
Baujahr
2025
Energie & Heizung
Warum sehe ich diese Anzeige? – Du siehst diese Anzeige basierend auf Ihrer Navigation auf unserer Website und den Suchkriterien, die du verwendet hast.
Energieausweistyp
Bedarfsausweis
Gebäudetyp
Wohngebäude
Wesentliche Energieträger
Strom
Gültigkeit
16.07.2025 bis 15.07.2035
Endenergiebedarf
18,10 kWh/(m²·a)
Weitere Energiedaten
Energieträger
Elektro
Details
Objektbeschreibung
Willkommen in diesem 5-stöckigen Neubau in Stuttgart-Wangen - ein modernes Mehrfamilienhaus mit ausgebautem Dachgeschoss und insgesamt 8 charmanten Wohneinheiten. Jede Etage bietet eine durchdachte Aufteilung mit einer 2-Zimmer-Wohnung und einer 3-Zimmer-Wohnung, ideal für Singles, Paare oder kleine Familien.
Das...
Ausstattung
+ Holzhybridbauweise
+ Aufzug
+ zweifarbige Kunststofffenster
+ Feinsteinzeugfliesen großformatig
+ Fußbodenheizung
+ energieeffiziente Wärmepumpe
+ hochwertige Sanitäre Ausstattung namhafter Hersteller
+ barrierefreier Zutritt zur Dusche
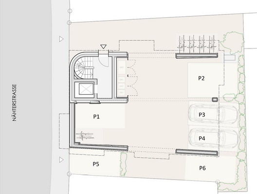
+ 6 Stellplätze
+ Kinderwagenstellplätze sowie...
Preisinformation
6 Stellplätze
Weitere Informationen
Sonstiges
Haftungsausschluss
Sämtliche Daten dieses Exposés wurden mit der erforderlichen Sorgfalt auf Basis von Angaben Dritter, insbesondere der Eigentümer zusammengestellt. Eine Verantwortlichkeit für die Richtigkeit und Vollständigkeit dieser Angaben kann von uns nicht übernommen werden. Dieses An-gebot ist...
Anbieter der Immobilie
LINK Immobilien GmbH
Kirchheimer Str. 52, 70619 Stuttgart

Online-ID: 2n7ll52
Referenznummer: 4784694
Finde Angebote wie dieses
Hier geht es zu unserem Impressum, den Allgemeinen Geschäftsbedingungen, den Hinweisen zum Datenschutz und nutzungsbasierter Online-Werbung.