
ohne-makler.net - Immobilien selbst vermarkten
Herr/Frau ohne-makler.net Kundenservice
040 ···
Nr. anzeigenPreise & Kosten
Provision für Käufer
provisionsfrei
Lage
Lebendige Nachbarschaft mit vielen Cafés, Restaurants, kleinen Läden und einer ausgezeichneten Anbindung. Die Straße selbst ist angenehm ruhig, der Innenhof sogar noch ruhiger. Hier hört man mehr Vogelgezwitscher als Stadtlärm.
Infrastruktur (im Umkreis von 5 km):
Apotheke, Lebensmittel-Discount, Allgemeinmediziner...
Die Wohnung
Kategorie
Maisonette
Wohnungslage
2. Geschoss
Bezug
sofort
Wohnanlage
Energie & Heizung
Warum sehe ich diese Anzeige? – Du siehst diese Anzeige basierend auf Ihrer Navigation auf unserer Website und den Suchkriterien, die du verwendet hast.
Energieausweistyp
Bedarfsausweis
Gebäudetyp
Wohngebäude
Endenergiebedarf
110,00 kWh/(m²·a)
Weitere Energiedaten
Energieträger
Fernwärme
Heizungsart
Zentralheizung
Details
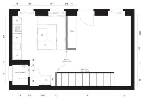
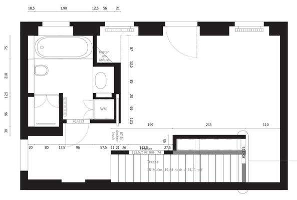
Objektbeschreibung
Zwei Etagen, zwei Balkone, viel Licht und Raum zum Durchatmen - mitten im lebendigen Kreuzberg. Diese modernisierte Altbauwohnung ist individuell und hochwertig ausgestattet und liegt in einem grünen, ruhigen Innenhof. Provisionsfrei ohne Makler und sofort bezugsfrei.
HIGHLIGHTS DER WOHNUNG
- Maisonette im 1...
Ausstattung
Balkon, Keller, Dachterrasse, Vollbad, Einbauküche, Parkett
Weitere Informationen
Sonstiges
Heizungsart: Zentralheizung
Energieträger: Fernwärme
MÖBLIERUNG
Die Wohnung kann - aber muss nicht - möbliert gekauft werden. Alle auf den Fotos sichtbaren Gegenstände können individuell oder als Paket zum sofortigen Einzug preiswert erworben werden. Der rote Bosch Kühlschrank und natürlich die...
Anbieter der Immobilie
ohne-makler.net - Immobilien selbst vermarkten
Humboldtstr. 25 A, 21509 Glinde
Online-ID: 2n84452
Referenznummer: 419494
Finde Angebote wie dieses
Hier geht es zu unserem Impressum, den Allgemeinen Geschäftsbedingungen, den Hinweisen zum Datenschutz und nutzungsbasierter Online-Werbung.