
Schantl ITH Immobilientreuhand GmbH
Herr Nikolaus Kronabitter
+43 ···
Nr. anzeigenPreise & Kosten
Provision für Käufer
provisionsfrei
Lage
Das Projekt "Wohnen im Park" befindet sich in einer angenehmen Wohngegend im Süden von Graz. Die Umgebung bietet eine ideale Kombination aus urbaner Infrastruktur und ruhigem, grünem Wohnumfeld. Einkaufsmöglichkeiten, Schulen, Kindergärten, Ärzte und Freizeiteinrichtungen sind in wenigen Minuten erreichbar. Auch die Anbindung...
Die Wohnung
Wohnungslage
Erdgeschoss
Bezug
01.12.2027
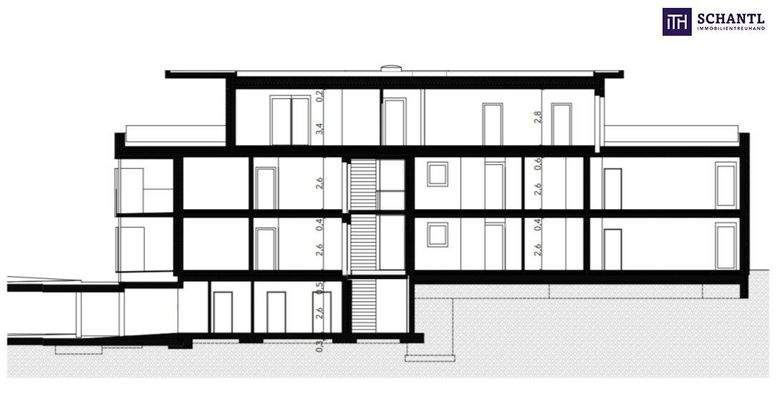
Wohnanlage
Energie & Heizung
Warum sehe ich diese Anzeige? – Du siehst diese Anzeige basierend auf Ihrer Navigation auf unserer Website und den Suchkriterien, die du verwendet hast.
Heizwärmebedarf (HWB)
34,40 kWh/(m²·a)
Gesamtenergieeffizienz (fGEE)
0,72
Weitere Energiedaten
Heizungsart
Fußbodenheizung, Luft-/Wasser-Wärmepumpe
Details
Objektbeschreibung
WOW! EIN TRAUM IN 4 WÄNDEN! ERSTBEZUG-GARTENJUWEL IN GRAZ-LIEBENAU - GROSSZÜGIG, GRÜN & FAMILIENFREUNDLICH!
Diese moderne Erdgeschosswohnung überzeugt mit durchdachter Raumaufteilung, zwei Terrassen und einem beeindruckenden Privatgarten von über 220 m² - ideal für Familien, Paare oder Naturverbundene, die...
Preisinformation
zzgl. 1 TG-Platz zu EUR 27.500,--, 1 Stellplatz
Weitere Informationen
Stichworte
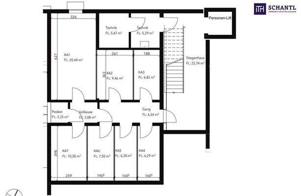
Tiefgarage vorhanden, Nord-Ost-Süd-West-Balkon/Terrasse, Anzahl der Badezimmer: 1, Anzahl der separaten WCs: 1, Anzahl Terrassen: 2, Balkon-Terrassen-Fläche: 30,93 m², Gartenfläche: 229,60 m², Kellerfläche: 7,60 m², Bundesland: Steiermark, 4 Etagen
Anbieter der Immobilie

Schantl ITH Immobilientreuhand GmbH
Messendorferstraße 71a, 8041 Graz
Online-ID: 2n8um57
Referenznummer: OBGC20260122111639954bf6da02dce
Finde Angebote wie dieses
Günstige Immobilienfinanzierung einfach online berechnen
Persönliches Angebot berechnenWarum sehe ich diese Werbung? – Du siehst diese Werbung basierend auf Deiner Navigation auf unserer Website und der von Dir verwendeten Suchkriterien.
Diese Werbung wird bezahlt von durchblicker
Werbung melden
Hier geht es zu unserem Impressum, den Allgemeinen Geschäftsbedingungen, den Hinweisen zum Datenschutz und nutzungsbasierter Online-Werbung.