
ohne-makler.net - Immobilien selbst vermarkten
Privat von Jens-Hendrik Haferkamp
Kontaktiere den Anbieter schriftlich, es ist keine Telefonnummer hinterlegt.
Preise & Kosten
nicht in Warmmiete enthalten
Kaution
2.385,00
Warum sehe ich diese Anzeige? – Du siehst diese Anzeige basierend auf Ihrer Navigation auf unserer Website und den Suchkriterien, die du verwendet hast.
Lage
Die Immobilie befindet sich mitten im Herzen von Hollenstedt, einer charmanten Gemeinde im Landkreis Harburg. Alle wichtigen Einrichtungen des täglichen Bedarfs - Supermärkte, Bäcker, Ärzte und Apotheken - sind bequem zu Fuß erreichbar.
Familien profitieren von nahegelegenen Kindergärten und Schulen.
Dank der...
Die Wohnung
Kategorie
Maisonette
Wohnungslage
Erdgeschoss
Bezug
sofort
Wohnanlage
Energie & Heizung
Warum sehe ich diese Anzeige? – Du siehst diese Anzeige basierend auf Ihrer Navigation auf unserer Website und den Suchkriterien, die du verwendet hast.
Energieausweistyp
Verbrauchsausweis
Gebäudetyp
Wohngebäude
Effizienzklasse
E
Endenergieverbrauch
139,00 kWh/(m²·a)
Weitere Energiedaten
Energieträger
Gas
Heizungsart
Zentralheizung
Details
Objektbeschreibung
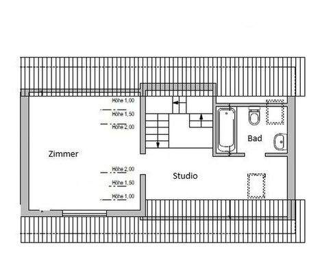
HAUS IM HAUS - IHR NEUES ZUHAUSE IM HERZEN VON HOLLENSTEDT
Diese charmante Maisonette-Wohnung - mit eigenem Hauseingang - bietet auf ca. 68 m² zwei Ebenen mit durchdachter Raumaufteilung.
Große Fensterfronten sorgen für lichtdurchflutete Räume, während die Wohnküche mit Essecke im Erker zum gemeinsamen Kochen...
Ausstattung
Vollbad, Einbauküche, Gäste-WC, Parkett, Fliesen
Bemerkungen:
Ausstattung & Highlights:
+ Maisonette-Wohnung auf 2 Ebenen
+ Ca. 68 m² Wohnfläche
+ Vollbad mit Fenster und Gäste-WC
+ Wohnküche mit Erker und Fenster für die Essecke
+ Großzügige Fensterfront im Wohnzimmer
+ Dachstudio
+...
Preisinformation
1 Carportplatz
Nettokaltmiete: 795,00 EUR
Weitere Informationen
Sonstiges
Heizungsart: Zentralheizung
Energieträger: Gas
HAFERKAMP GMBH
Strandallee 11
23683 Scharbeutz (Haffkrug)
Telefon: 04563 / 423998-0
Fax: 04563 / 423998-9
E-Mail: info(at)haferkamp-grundbesitz.de
Geschäftsführer: Jens-Hendrik Haferkamp
Amtsgericht Lübeck HRB 23030...
Anbieter der Immobilie
ohne-makler.net - Immobilien selbst vermarkten
Humboldtstr. 25 A, 21509 Glinde
Privat von Jens-Hendrik Haferkamp
Dein Ansprechpartner
Kontaktiere den Anbieter schriftlich, es ist keine Telefonnummer hinterlegt.
Online-ID: 2n8xr5a
Referenznummer: 423889
Finde Angebote wie dieses
Hier geht es zu unserem Impressum, den Allgemeinen Geschäftsbedingungen, den Hinweisen zum Datenschutz und nutzungsbasierter Online-Werbung.