

Gebietsleitung Bad Oldesloe der LBS Immobilien GmbH NordOst
Herr Ismail Acikgöz
045 ···
Nr. anzeigenPreise & Kosten
Provision für Käufer
6,25 % Käuferprovision inkl. MwSt., verdient und fällig mit Beurkundung des notariellen Kaufvertrages. Der Immobilienmakler hat einen provisionspflichtigen Maklervertrag mit dem Verkäufer in gleicher Höhe abgeschlossen.
Lage
Die Immobilie befindet sich in der Gemeinde Labenz, einer historisch gewachsenen Gemeinde im Kreis Herzogtum Lauenburg mit rund 900 Einwohnern und einer gut funktionierenden Dorfgemeinschaft. Der Ortsmittelpunkt um den Mühlenteich prägt das dörfliche Umfeld und lädt zu Aufenthalten im Freien ein. Labenz liegt verkehrsgünstig...
Das Renditeobjekt
Kategorie
Mehrfamilienhaus
Baujahr
1900
Bezug
sofort
Energie & Heizung
Warum sehe ich diese Anzeige? – Du siehst diese Anzeige basierend auf Ihrer Navigation auf unserer Website und den Suchkriterien, die du verwendet hast.
Energieausweistyp
Verbrauchsausweis
Gebäudetyp
Wohngebäude
Baujahr laut Energieausweis
1900
Wesentliche Energieträger
Gas
Gültigkeit
05.01.2026 bis 04.01.2036
Endenergieverbrauch
118,00 kWh/(m²·a)
Details
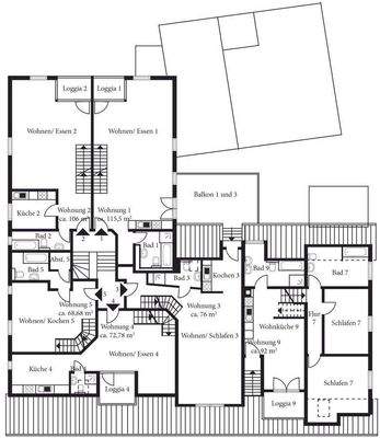
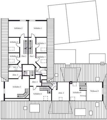
Objektbeschreibung
Diese Immobilie bietet Kapitalanlegern eine vielseitige Investitionsmöglichkeit mit zusätzlichem Entwicklungspotenzial. Der heutige Eigentümer erwarb den ehemaligen Hof Mitte der 1990er Jahre und entwickelte die Liegenschaft über einen längeren Zeitraum kontinuierlich weiter. Im Hauptgebäude entstanden dabei mehrere...
Ausstattung
Das angebotene MFH stellt für Kapitalanleger eine attraktive Investitionsmöglichkeit dar, da es über vielfältige Ausbau- und Vermietungsreserven verfügt. Neben der Schaffung zusätzlicher Wohnfläche besteht die Option, bereits vorhandene Nutzflächen künftig ertragswirksam zu nutzen. Zum Bestand gehören neben dem Haupthaus mit...
Anbieter der Immobilie
Gebietsleitung Bad Oldesloe der LBS Immobilien GmbH NordOst
Lübecker Straße 28, 23843 Bad Oldesloe

Online-ID: 2n99352
Referenznummer: 323-2514
Finde Angebote wie dieses
Hier geht es zu unserem Impressum, den Allgemeinen Geschäftsbedingungen, den Hinweisen zum Datenschutz und nutzungsbasierter Online-Werbung.