

Bürosuche sharednc.com
Herr/Frau Bürosuche sharednc.com
Kontaktiere den Anbieter schriftlich, es ist keine Telefonnummer hinterlegt.
Preise & Kosten
Provision für Mieter
provisionsfrei
Warum sehe ich diese Anzeige? – Du siehst diese Anzeige basierend auf Ihrer Navigation auf unserer Website und den Suchkriterien, die du verwendet hast.
Lage
noch nicht ausgefüllt
Büro-/Praxisfläche
Kategorie
Bürofläche
Bezug
Sofort
Details
Objektbeschreibung
(Objekt-Nr.: 223454 R)
Objektkategorie: Abgeschlossener Büroraum
Titel des Angebots: Büroraum 1
***Flexible Konditionen***
Mindestlaufzeit: 3 Monate
Kündigungsfrist: 30 Tage zum Monatsende
Verfügbar ab: Sofort
Möbliert: Ja
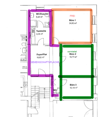
ACHTUNG: Die hier angegebene Fläche von 38qm...
Ausstattung
Ausstattungsmerkmale:
- W-LAN
- Internet
- Reinigung
- 24/7
- Drucker/Kopierer
- Firmenschild
- Postadresse
- Möbliert
- Hunde erlaubt
- Küche
- Meetingraum
- Parkplatz
Anbieter der Immobilie
Bürosuche sharednc.com
Hohenzollernring 55, 50672 Köln

Herr/Frau Bürosuche sharednc.com
Dein Ansprechpartner
Kontaktiere den Anbieter schriftlich, es ist keine Telefonnummer hinterlegt.
Online-ID: 2n9az52
Referenznummer: 223454 R
Finde Angebote wie dieses
Hier geht es zu unserem Impressum, den Allgemeinen Geschäftsbedingungen, den Hinweisen zum Datenschutz und nutzungsbasierter Online-Werbung.