Danhaus Verkaufsbüro Bolanden - Regina Ahner - Handelsvertretung für die Danhaus GmbH

Regina Ahner

Kontaktiere den Anbieter schriftlich, es ist keine Telefonnummer hinterlegt.

Mach aus deiner Miete Wohneigentum!

€ 358.000
Kaufpreis
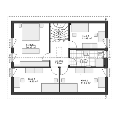
160 m²
Wohnfläche ca.
5
Zimmer
461 m²
Grundstücksfl. ca.

Der Anbieter dieses Objekts hat gegenüber der AVIV Germany GmbH als Betreiber dieses Online-Marktplatzes erklärt, nicht als Unternehmer im Sinne des § 1 KSchG zu handeln. Die im Verbraucherschutzrecht der Union verankerten Verbraucherrechte (insbesondere Informationspflichten und Rücktritts- bzw. Widerrufsrechte) finden auf den Vertrag zwischen dem Anbieter des Objekts und Ihnen (dem Interessenten) keine Anwendung.

Provisionsfrei
Gewerblicher Anbieter

Der Anbieter dieses Objekts hat gegenüber der AVIV Germany GmbH als Betreiber dieses Online-Marktplatzes erklärt, als Unternehmer im Sinne des § 1 KSchG zu handeln.

AdresseStraße nicht freigegeben
76857 Münchweiler am Klingbach 
Auf Karte ansehen

Preise & Kosten

Kaufpreis € 358.000

Provision für Käufer

provisionsfrei

Lage

Münchweiler am Klingbach ist eine Ortsgemeinde im Landkreis Südliche Weinstraße in Rheinland-Pfalz. Gute Anbindung nach Karlsruhe und Landau.

Das Haus

Kategorie

Einfamilienhaus

  • Zustand: Neubau, projektiert
  • Gäste-WC

Energie & Heizung

Weitere Energiedaten

Heizungsart

Fußbodenheizung

Details

Objektbeschreibung

FEELS LIKE HOME. LOOKS LIKE YOU.

Ein Zuhause, das deine Handschrift trägt - individuell, durchdacht und bezahlbar.
Dein Traum vom Eigenheim ist näher, als du denkst.
Warum warten?

START YOUR HOME JOURNEY TODAY.

Ausstattung

THINK WHITE - Do it yourself.

- Fertige Gebäudehülle - du entscheidest über den Innenausbau
- Maximale Individualität - für kreative Köpfe & Macher
- Ideal für Eigenleistung - handwerkliches Geschick spart bares Geld
- Optimierte Grundrisse - smarte Wohnkonzepte für flexible Gestaltung
-...

Mehr anzeigen

Weitere Informationen

Sonstiges
Das Haus ist projektiert inkl. Grundstück. Das Grundstück wird in Kommission angeboten bzw. direkt von Dritten verkauft. Daher kann der genannte Preis aufgrund aktueller Marktsituationen schwanken.
Die Bauabwicklung kann kurzfristig nach Grundstückserwerb begonnen werden. Bilder zeigen möglicherweise...

Mehr anzeigen

Anbieter der Immobilie

user

Regina Ahner

Dein Ansprechpartner

Kontaktiere den Anbieter schriftlich, es ist keine Telefonnummer hinterlegt.

Anbieter-Website Anbieter-Profil Anbieter-Impressum

Online-ID: 2n9fa5c

Referenznummer: WB-27982-Münchweiler am K

Finde Angebote wie dieses

imageimageimage

Hier geht es zu unserem Impressum, den Allgemeinen Geschäftsbedingungen, den Hinweisen zum Datenschutz und nutzungsbasierter Online-Werbung.