team19 Immobilien GmbH

Frau Marija Ivanov

Entspanntes Wohnen in Grünruhelage: Charmante 1-Zimmer Wohnung mit Freifläche!

€ 799,84
Gesamtmiete inkl. BK
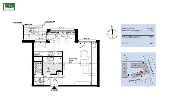
46,06 m²
Wohnfläche ca.
1
Zimmer

Der Anbieter dieses Objekts hat gegenüber der AVIV Germany GmbH als Betreiber dieses Online-Marktplatzes erklärt, nicht als Unternehmer im Sinne des § 1 KSchG zu handeln. Die im Verbraucherschutzrecht der Union verankerten Verbraucherrechte (insbesondere Informationspflichten und Rücktritts- bzw. Widerrufsrechte) finden auf den Vertrag zwischen dem Anbieter des Objekts und Ihnen (dem Interessenten) keine Anwendung.

Gewerblicher Anbieter

Der Anbieter dieses Objekts hat gegenüber der AVIV Germany GmbH als Betreiber dieses Online-Marktplatzes erklärt, als Unternehmer im Sinne des § 1 KSchG zu handeln.

AdresseCzeikestraße 2
1100 Wien 
(Favoriten)
Auf Karte ansehen

Preise & Kosten

Gesamtmiete

inkl. Betriebskosten

€ 799,84
Nettokaltmiete € 618,27 Betriebskosten € 108,85

Kaution

3 Bruttomonatsmieten

Provision für Mieter

Gemäß Erstauftraggeberprinzip bezahlt der Abgeber die Provision.

Lage

Böhmischer Prater, Löwygrube, Erholungsgebiet Laaer Wald, Kurpark Oberlaa, Südosttangente A23

Die Wohnung

Wohnungslage

3. Geschoss

Bezug

ab sofort

  • Bad mit Dusche
  • Balkon
  • Böden: Fliesenboden, Parkett
  • Ausstattung: neuwertig
  • Weitere Räume: Wasch-Trockenraum

Wohnanlage

  • Zustand: Neubau
  • Personenaufzug

Energie & Heizung

Heizwärmebedarf (HWB)

A

23,51 kWh/(m²·a)

Gesamtenergieeffizienz (fGEE)

A

0,83

Weitere Energiedaten

Energieträger

Fernwärme

Haustyp

Fertighaus

Heizungsart

Zentralheizung

Details

Objektbeschreibung

Herzlich willkommen in Ihrem neuen Zuhause!

Diese Neubauwohnungen liegen in unmittelbarer Nähe des idyllischen Erholungsgebiets Laaer Wald und bestechen durch gut durchdachte Grundrisse, lichtdurchflutete Räume sowie eine erstklassige Einbauküche und Freifläche (Balkon/Loggia/Garten).

Jede Wohneinheit verfügt...

Mehr anzeigen

Preisinformation

Nettokaltmiete: 618,27 EUR

Weitere Informationen

Stichworte
Tiefgarage vorhanden, Nord-Balkon/Terrasse, Fahrradraum, Nutzfläche: 50,98 m², Gesamtfläche: 50,98 m², Freifläche: 4,92 m², Anzahl der Badezimmer: 1, Anzahl der separaten WCs: 1, Anzahl Balkone: 1, Balkon-Terrassen-Fläche: 4,92 m², Bundesland: Wien, 8 Etagen, Wohnungsnr.: 26

Anbieter der Immobilie

Partner

team19 Immobilien GmbH

im Durchschnitt  4,20  Sterne
(bei 2 Bewertungen)

Handelskai 94-96/44. Stock, 1200 BRIGITTENAU

user

Frau Marija Ivanov

Dein Ansprechpartner

Anbieter-Website Anbieter-Profil Anbieter-Impressum

Online-ID: 2n9nr52

Referenznummer: OBGC202511140937330973462211072

Finde Angebote wie dieses

imageimageimage

Hier geht es zu unserem Impressum, den Allgemeinen Geschäftsbedingungen, den Hinweisen zum Datenschutz und nutzungsbasierter Online-Werbung.