allkauf Handelsvertretung

Herr Thorsten Goede

Ihr Traum von der Doppelhaushälfte in Sögel wartet auf Sie!

€ 338.999
Kaufpreis
113,64 m²
Wohnfläche ca.
3
Zimmer
500 m²
Grundstücksfl. ca.

Der Anbieter dieses Objekts hat gegenüber der AVIV Germany GmbH als Betreiber dieses Online-Marktplatzes erklärt, nicht als Unternehmer im Sinne des § 1 KSchG zu handeln. Die im Verbraucherschutzrecht der Union verankerten Verbraucherrechte (insbesondere Informationspflichten und Rücktritts- bzw. Widerrufsrechte) finden auf den Vertrag zwischen dem Anbieter des Objekts und Ihnen (dem Interessenten) keine Anwendung.

Gewerblicher Anbieter

Der Anbieter dieses Objekts hat gegenüber der AVIV Germany GmbH als Betreiber dieses Online-Marktplatzes erklärt, als Unternehmer im Sinne des § 1 KSchG zu handeln.

AdresseStraße nicht freigegeben
49751 Sögel 
Auf Karte ansehen

Preise & Kosten

Kaufpreis € 338.999

Provision für Käufer

Bitte beachte, das Angebot kann bei Vertragsabschluss die Zahlung einer Provision beinhalten. Weitere Informationen erhältst Du vom Anbieter.

Lage

Die Lage Ihrer neuen Doppelhaushälfte ist perfekt! In einem ruhigen, familienfreundlichen Wohngebiet gelegen, profitieren Sie von einer hervorragenden Infrastruktur. Schulen, Kindergärten und Einkaufsmöglichkeiten sind in unmittelbarer Nähe. Auch die Anbindung an öffentliche Verkehrsmittel und Hauptverkehrsstraßen ist optimal...

Mehr anzeigen

Das Haus

Kategorie

Doppelhaushälfte

  • Zustand: projektiert
  • Gäste-WC
  • barrierefrei

Energie & Heizung

Weitere Energiedaten

Haustyp

KfW 55

Details

Objektbeschreibung

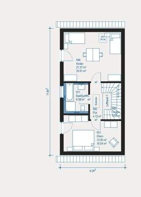
Willkommen in Ihrer neuen Doppelhaushälfte in Sögel! Dieses projektiertes Zuhause ist speziell auf Ihre Wünsche und Vorstellungen ausgelegt und bietet Ihnen die Möglichkeit, Ihre Traumimmobilie nach Ihren Vorstellungen zu gestalten. Mit einer großzügigen Wohnfläche von 113,64 m² und einem wohl durchdachten Raumkonzept, das 3...

Mehr anzeigen

Ausstattung

Die Doppelhaushälfte überzeugt durch hochwertige bauliche und technische Details:
- Energieeffizienzwand
- Echtholztreppe
- Luft-Wasser-Wärmepumpe
- Fußbodenheizung
- Be- und Entlüftungsanlage
- 3-fach verglaste Fenster inklusive Rollläden mit Aluminiumlamellen
- Lichte Raumhöhe von 2,75...

Mehr anzeigen

Weitere Informationen

Sonstiges
allkauf heißt: Maximale Sicherheit, kurze Lieferzeiten, garantierte Fertigstellung.

Zu allen Häusern gehört:
- Energieeffizienzwand
- Echtholztreppe
- Luft-Wasser-Wärmepumpe
- Fußbodenheizung
- Be- und Entlüftungsanlage
- 3-fach verglaste Fenster inklusive Rollläden mit...

Mehr anzeigen

Anbieter der Immobilie

Partner

allkauf Handelsvertretung

Pyrmonterstr. 125, 32805 Horn-Bad Meinberg

user

Herr Thorsten Goede

Dein Ansprechpartner

Anbieter-Website Anbieter-Profil Anbieter-Impressum

Online-ID: 2n9wg58

Referenznummer: 3149751

Finde Angebote wie dieses

imageimageimage

Hier geht es zu unserem Impressum, den Allgemeinen Geschäftsbedingungen, den Hinweisen zum Datenschutz und nutzungsbasierter Online-Werbung.