
McMakler GmbH
Ihr McMakler Team
080 ···
Nr. anzeigenPreise & Kosten
Provision für Käufer
Die Provision i.H.v. 3,57 % inkl. MwSt. ist mit Kaufvertragsbeurkundung fällig, sofern der Verkaufspreis über 83.000,00 € liegt.
Liegt der Verkaufspreis dagegen bei/unter 83. Weitere Informationen siehe Provisionshinweis.
Lage
Lage: Urbane Lage in Berlin-Charlottenburg bietet pulsierendes Nachtleben mit Bars, Clubs usw.
Bildung und Betreuung: Familien profitieren von Kindergarten und Schule in max. 800 m Entfernung
Nahversorgung: Supermarkt, Apotheke und Postfiliale in unter 5 Gehminuten Entfernung
Anbindung: Bus, S-Bahn (S41/42), U-Bahn...
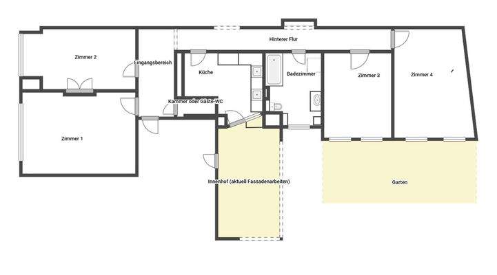
Die Wohnung
Wohnungslage
Erdgeschoss
Bezug
ab sofort
Wohnanlage
Energie & Heizung
Warum sehe ich diese Anzeige? – Du siehst diese Anzeige basierend auf Ihrer Navigation auf unserer Website und den Suchkriterien, die du verwendet hast.
Energieausweistyp
Bedarfsausweis
Gebäudetyp
Wohngebäude
Baujahr laut Energieausweis
1900
Wesentliche Energieträger
Fernwärme
Effizienzklasse
F
Endenergiebedarf
176,50 kWh/(m²·a)
Weitere Energiedaten
Energieträger
Fernwärme
Heizungsart
Zentralheizung
Details
Objektbeschreibung
Objektnr: 1068691
Als wunderbare Option für Eigennutzer präsentiert sich diese großzügige Eigentumswohnung mit barrierearmem Zugang in einer ruhigen, sicheren Nebenstraße Berlins. Die Lage verbindet das Beste aus zwei Welten: eine beschauliche Wohnatmosphäre im Alltag und gleichzeitig die Nähe zu einem lebendigen...
Ausstattung
+ In zentrumsnaher Umgebung in urbaner Lage, zur Eigennutzung
+ Entspannung im Freien dank einer Terrasse sowie eines überschaubaren Südgartens
+ Hervorragend für schnellen Einzug dank einwandfreien Zustands, zuletzt instandgesetzt: ca. 2025, Hausgeld: ca. 601,45 €
+ Wohnung mit partieller Fußbodenheizung...
Weitere Informationen
Provisionshinweis
Die Provision i.H.v. 3,57 % inkl. MwSt. ist mit Kaufvertragsbeurkundung fällig, sofern der Verkaufspreis über 83.000,00 € liegt.
Liegt der Verkaufspreis dagegen bei/unter 83.000,00 €, ist die fest vereinbarte Mindestprovision i.H.v. mind. 5.950,00 € inkl. MwSt. mit Kaufvertragsbeurkundung fällig...
Anbieter der Immobilie
McMakler GmbH
Am Postbahnhof 17, 10243 Berlin
Online-ID: 2n9y452
Referenznummer: fe04be079b
Finde Angebote wie dieses
Hier geht es zu unserem Impressum, den Allgemeinen Geschäftsbedingungen, den Hinweisen zum Datenschutz und nutzungsbasierter Online-Werbung.