Version: 8.24.0Navigation ĂĽberspringen
18,50 €
211,4 m² Bürofläche
Immowelt logo

BĂĽro zur Miete
18,50 €
/m²
211,4 m² Bürofläche

Top modernisierte, repräsentative Büroetage in Duisburg-Ruhrort

Das neue Zuhause für Ihr Unternehmen: Moderne und repräsentative Bürofläche in Duisburg-Ruhrort.

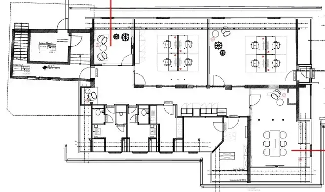
Die 211 Quadratmeter große Bürofläche befindet sich in der 3. Etage des Hauptgebäudes am Franz-Haniel-Platz. Das 1923 erbaute Gebäude wurde 2023 kernsaniert. Erleben Sie eine Bürofläche die moderne Ausstattung mit Altbaucharme verbindet. Alle Räume sind mit moderner Licht- und Klimatechnik ausgestattet, die per App gesteuert werden kann.

Die Bürofläche besteht aus vier Räumen, von denen bisher zwei als Büroräume und zwei als Besprechungsräume genutzt wurden. Hinzu kommt eine moderne Pantry-Küche mit Spülmaschine, zwei Waschräume sowie ein Lagerraum mit getrenntem Serverraum.

Die Büroetage ist ab sofort bezugsbereit und wird unmöbliert vermietet.

Merkmale

  • Bezug: sofort
  • 3. Geschoss
  • Kochnische, TeekĂĽche
  • Personenaufzug
  • 5 Stellplätze: Parkhaus, Tiefgarage
  • Kantine
  • Beleuchtung: Deckenbeleuchtung
  • Empfang

Realisiere Dein Projekt

Bausubstanz und Energie

Der Anbieter hat keine Informationen zum Energieverbrauch bereit gestellt.
  • Baujahr1923
  • Zustand der Immobilieneuwertig
  • EnergieträgerSolar, Luft-/Wasser-Wärmepumpe
Immowelt logo

Mietkosten

Monatliche Miete
18,50 €/m²
Nebenkosten
3,50 €
Provision fĂĽr Mieter
Bitte beachte, das Angebot beinhaltet bei Vertragsabschluss die Zahlung einer Provision. Weitere Informationen erhältst Du vom Anbieter.
Kaution
keine Angabe

Lage

address-icon
Franz-Haniel-Platz 1, Ruhrort, Duisburg (47119)
Die Bürofläche befindet sich direkt auf dem Franz-Haniel-Platz mitten in Ruhrort und ist durch die Straßenbahnlinie 901 an die Duisburger Innenstadt und den Hauptbahnhof angebunden sowie durch die Autobahnen A40, A42, A57 und A59 ans gesamte Ruhrgebiet.

Auf dem traditionsreichen Haniel Campus in Duisburg-Ruhrort erwarten Sie moderne Büroflächen, flexible Seminar- und Eventräume in der Haniel Akademie, ein Campus-Restaurant für die Mittagspause sowie ein Gästehaus zur Übernachtung.

Seit über 265 Jahren steht Haniel für Wandel und Fortschritt – heute öffnen wir unseren Campus für Unternehmer:innen, um voneinander zu lernen und gemeinsam zu wachsen. Der Campus auf dem Franz-Haniel-Platz entwickelt sich zu einem Ökosystem aus ebenso innovativen wie diversen Unternehmen – darunter etwa: Haniel, das Co-Creation Lab Places Beyond Bytes der Universität Duisburg-Essen, der Coworking-Space Work Inn oder die Impact Factory, der deutschlandweit führende Inkubator/Accelerator für Green & Social Entrepreneurs.

Ruhrort ist ein Stadtteil mit Charakter direkt am Wasser gelegen und bietet Gelegenheiten für Spaziergänge in der Mittagspause, Kulturangebote und weitere Gastronomie.

Weitere Informationen

Stichworte Sonstiges: EDV-Arbeitsplatzbeleuchtung, Getrennte Damen- und Herren-WCs

Weitere Services

Lust auf eine Besichtigung?
Eine Frage zur Immobilie?
Nachricht hinzufĂĽgen
Mit der Nutzung der oben angegebenen Telefonnummer oder durch Klicken auf „Kontaktieren“ akzeptierst Du die Allgemeinen Nutzungsbedingungen, denen Du jederzeit widersprechen kannst. Weitere Informationen zum Datenschutz

Ăśber den Anbieter

Franz-Haniel-Platz 1, 47119 Duisburg
partner badge
Partnerschaft
Herr Henrik ReinekeDein Kontakt
Keine Telefonnummer hinterlegt
Keine Telefonnummer hinterlegt
Online-ID: 2n9yb52
Franz-Haniel & Cie GmbH
Nachricht hinzufĂĽgen
Mit der Nutzung der oben angegebenen Telefonnummer oder durch Klicken auf „Kontaktieren“ akzeptierst Du die Allgemeinen Nutzungsbedingungen, denen Du jederzeit widersprechen kannst. Weitere Informationen zum Datenschutz
Wie zufrieden bist du mit dieser Seite (nicht mit der Immobilie selbst)?