
BENKOSS Immobilien
Herr Benjamin Koss
017 ···
Nr. anzeigenPreise & Kosten
Provision für Käufer
provisionsfrei
Lage
Das Neubauprojekt liegt zentral in Neumünster und verbindet städtische Nähe mit einer ruhigen, attraktiven Wohnumgebung. Alle wichtigen Einrichtungen des täglichen Bedarfs - Supermärkte, Bäckereien, Apotheken und Gastronomie - befinden sich in unmittelbarer Nähe.
Bildungseinrichtungen wie Schulen und Kindergärten sind...
Das Renditeobjekt
Kategorie
Mehrfamilienhaus
Baujahr
2026
Bezug
nach Fertigstellung
Energie & Heizung
Warum sehe ich diese Anzeige? – Du siehst diese Anzeige basierend auf Ihrer Navigation auf unserer Website und den Suchkriterien, die du verwendet hast.
Weitere Energiedaten
Haustyp
KfW 40
Heizungsart
Fußbodenheizung, Luft-/Wasser-Wärmepumpe, Zentralheizung
Details
Objektbeschreibung
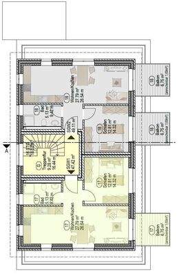
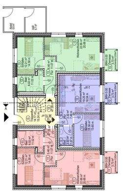
In einer ruhigen Wohnlage von Neumünster entsteht ab 2026 ein überschaubares Neubauprojekt mit insgesamt acht 2-Zimmer-Wohneinheiten in zweiter Reihe, das hier im Gesamtpaket zum Verkauf steht. Gebaut wird nach dem KfW-40-QNG-Standard ("Qualitätssiegel Nachhaltiges Gebäude"). Durch diesen energetischen und nachhaltigen...
Ausstattung
- Neubauprojekt in ruhiger Lage von Neumünster, Baubeginn Frühjahr 2026
- Attraktive Kapitalanlage dank KFW 40 QNG (steuerliche Vorteile möglich)
- Insgesamt 8 Wohneinheiten, jeweils mit 2 Zimmern, Bad und Balkon (Geschosse) bzw. Terrasse (Erdgeschoss)
- Massivbauweise durch regional erfahrenen Bauträger, Referenzen...
Weitere Informationen
Energiepass
Energieausweis wird bei Besichtigung vorgelegt.
Stichworte
Carport vorhanden, Süd-West-Balkon/Terrasse, Rolladen, Wohnfläche: 362,40 m², vermietbare Fläche: 362,40 m², Anzahl der Schlafzimmer: 8, Anzahl der Badezimmer: 8, Anzahl Balkone: 6, Anzahl Terrassen: 3, Anzahl der Wohneinheiten: 8, Bundesland...
Anbieter der Immobilie
BENKOSS Immobilien
Bahnhofstraße 5, 24594 Hohenwestedt
Online-ID: 2n9zf5a
Referenznummer: 385010
Finde Angebote wie dieses
Hier geht es zu unserem Impressum, den Allgemeinen Geschäftsbedingungen, den Hinweisen zum Datenschutz und nutzungsbasierter Online-Werbung.