

EDE INVEST GmbH & Co. KG
Herr Thomas Brandmeier
+49 ···
Nr. anzeigenPreise & Kosten
Provision für Käufer
2,975 % inkl. MwSt. (2,50 % netto) inkl. MwSt.
Lage
Die Stadt Aichach liegt malerisch im Wittelsbacher Land, einer geschichtsträchtigen und zugleich dynamischen Region im Herzen Bayerns. Mit rund 22.000 Einwohnern bietet Aichach die perfekte Balance zwischen Kleinstadtcharme und moderner Infrastruktur.
Aichach überzeugt durch seine hohe Lebensqualität. Die Umgebung ist...
Das Haus
Kategorie
Einfamilienhaus
Baujahr
2005
Energie & Heizung
Warum sehe ich diese Anzeige? – Du siehst diese Anzeige basierend auf Ihrer Navigation auf unserer Website und den Suchkriterien, die du verwendet hast.
Energieausweistyp
Verbrauchsausweis
Gebäudetyp
Wohngebäude
Baujahr laut Energieausweis
2005
Wesentliche Energieträger
GAS
Gültigkeit
bis 24.09.2034
Endenergieverbrauch
74,27 kWh/(m²·a)
Weitere Energiedaten
Energieträger
Gas
Heizungsart
Zentralheizung
Details
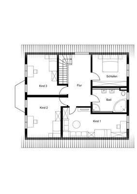
Objektbeschreibung
In einer ruhigen und familienfreundlichen Lage von Aichach erwartet Sie dieses außergewöhnlich gepflegte Einfamilienhaus mit separater Einliegerwohnung - ein Zuhause, das Komfort, Qualität und Flexibilität ideal vereint.
Mit einer gesamten Wohnfläche von rund 197?m² auf einem ca. 680?m² großen Grundstück bietet diese...
Ausstattung
- Tolles Einfamilienhaus mit Einliegerwohnung in Aichach
- ca. 197 qm Wohnfläche insgesamt
- Haus hat ca. 140 qm Wohnfläche mit 4 Schlafzimmern
- Einliegerwohnung ca. 57 qm Wohnfläche und 2 Zimmer
- Sehr gepflegter und hochwertiger Zustand
- Sowohl Einliegerwohnung als auch Haus mit...
Weitere Informationen
Sonstiges
Alle in diesem Exposé verwendeten Angaben beruhen auf Informationen von Dritten (z.B. Eigentümer, Hausverwaltung, etc.) und daher freibleibend und ohne jegliche Gewähr. Zahlenangaben sind immer als ca-Angaben zu verstehen. Irrtum, Änderungen, Zwischenverkauf oder Zwischenvermietung bleiben vorbehalten. Die...
Dokumente
Anbieter der Immobilie
EDE INVEST GmbH & Co. KG
Bavariaring 18, 80336 München

Online-ID: 2na3a53
Referenznummer: 5220_6
Finde Angebote wie dieses
Hier geht es zu unserem Impressum, den Allgemeinen Geschäftsbedingungen, den Hinweisen zum Datenschutz und nutzungsbasierter Online-Werbung.