Ansprechpartner

Stark Bau GmbH & Co. KG

Herr Michael Jacob

`` Zentrumsnah ``, topmoderne, barrierefreie 3 Zimmer Wohnung mit Terrasse `` provisionsfrei ``

€ 356.500
Kaufpreis
72,15 m²
Wohnfläche ca.
3
Zimmer

Der Anbieter dieses Objekts hat gegenüber der AVIV Germany GmbH als Betreiber dieses Online-Marktplatzes erklärt, nicht als Unternehmer im Sinne des § 1 KSchG zu handeln. Die im Verbraucherschutzrecht der Union verankerten Verbraucherrechte (insbesondere Informationspflichten und Rücktritts- bzw. Widerrufsrechte) finden auf den Vertrag zwischen dem Anbieter des Objekts und Ihnen (dem Interessenten) keine Anwendung.

Provisionsfrei
Gewerblicher Anbieter

Der Anbieter dieses Objekts hat gegenüber der AVIV Germany GmbH als Betreiber dieses Online-Marktplatzes erklärt, als Unternehmer im Sinne des § 1 KSchG zu handeln.

AdresseStraße nicht freigegeben
22946 Trittau 
Auf Karte ansehen

Preise & Kosten

Kaufpreis € 356.500

Provision für Käufer

provisionsfrei

Lage

Die stetig wachsende Gemeinde Trittau mit seinen ca. 9000 Einwohnern liegt im schönen Kreis Stormarn in Schleswig-Holstein. Gute 30 Kilometer entfernt liegt die Hamburger Innenstadt. Andere Ziele sind ebenfalls schnell erreicht, durch die Nähe zur B404, der A24 oder der A1.

Trittau zeichnet sich zusätzlich durch eine...

Mehr anzeigen

Die Wohnung

Bezug

Ende 2026 / Anfang 2027

  • Bad mit Fenster und Dusche
  • Balkon, Garten
  • barrierefrei
  • Böden: Fliesenboden
  • Zustand: Erstbezug
  • Weitere Räume: Abstellraum

Wohnanlage

  • Baujahr: 2026
  • 1 Stellplatz

Energie & Heizung

Weitere Energiedaten

Heizungsart

Fußbodenheizung, Luft-/Wasser-Wärmepumpe

Details

Objektbeschreibung

Modernes und innovatives Wohnen in einer Stadt mit guter Infrastruktur, viel Natur und ca. 4 Gehminuten vom Zentrum entfernt.
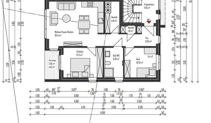
Die hier angebotene barrierefreie Erdgeschosswohnung hat ca. 72,15 m² Wohnfläche verteilt auf 3 Zimmer und einer Terrasse in Süd Ost Ausrichtung.

unterteilt sich wie folgt...

Mehr anzeigen

Ausstattung

Zu den Ausstattungsmerkmalen zählen:
+ Erdgeschosswohnung mit 72,15 m² verteilt auf 3 Zimmer
+ in solider und massiver Bauweise
+ 1 PKW Außenstellplatz
+ innovative Luft- Wasser-Wärmepumpe
+ Passiv Lüftung im gesamten Objekt
+ Internet vorhanden, Glasfaser
+ Fußbodenheizung im gesamten Objekt
+ offene...

Mehr anzeigen

Preisinformation

1 Stellplatz

Weitere Informationen

Sonstiges
Die enthaltenen Daten beruhen auf den uns vom Eigentümer zur Verfügung gestellten Unterlagen.
Eine Gewähr für die Vollständigkeit und Richtigkeit der Angaben wird nicht übernommen.

Das Angebot ist freibleibend.

Für eine Terminabstimmung senden Sie uns bitte eine Anfrage (Anbieter kontaktieren)...

Mehr anzeigen

Anbieter der Immobilie

Partner

Stark Bau GmbH & Co. KG

Stubbendorfer Ring 15, 23858 Wesenberg

Ansprechpartner

Herr Michael Jacob

Dein Ansprechpartner

Anbieter-Website Anbieter-Profil Anbieter-Impressum

Online-ID: 2na5e5d

Referenznummer: WK 12 - 01

Finde Angebote wie dieses

imageimageimage

Hier geht es zu unserem Impressum, den Allgemeinen Geschäftsbedingungen, den Hinweisen zum Datenschutz und nutzungsbasierter Online-Werbung.