
EVC Hannover GmbH
Team Hannover
+49 ···
Nr. anzeigenPreise & Kosten
zzgl. Nebenkosten
Provision für Mieter
3 Monatsbruttomieten zzgl. gesetzlicher MwSt.
Die Courtage beträgt 3% der 10-Jahresbruttomiete (Nettomiete + Nebenkosten), mindestens jedoch 3 Monatsbruttomieten, bei Mietvertragsverlängerungsoption eine weitere Monatsbruttomiete, jeweils zzgl. geset
Warum sehe ich diese Anzeige? – Du siehst diese Anzeige basierend auf Ihrer Navigation auf unserer Website und den Suchkriterien, die du verwendet hast.
Lage
Der Landkreis Rotenburg (Wümme) ist ein ländlicher Landkreis in Niedersachsen am Südwestrand der Metropolregion Hamburg. Er liegt zwischen Hamburg und Bremen im Zentrum des Elbe-Weser-Dreiecks. Kreisstadt ist Rotenburg (Wümme). Die Bevölkerungszahl des Landkreises Rotenburg (Wümme) beläuft sich auf z.Zt. ca. 165.000...
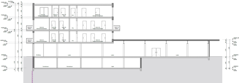
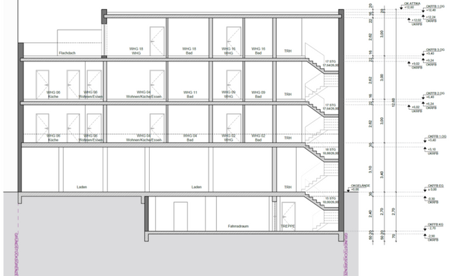
Die Ladenfläche
Baujahr
2025
Energie & Heizung
Warum sehe ich diese Anzeige? – Du siehst diese Anzeige basierend auf Ihrer Navigation auf unserer Website und den Suchkriterien, die du verwendet hast.
Energieausweis: für diesen Gebäudetyp nicht notwendig
Details
Objektbeschreibung
Bei unserer angebotenen Immobilie handelt es sich um die seltene Möglichkeit, direkt im Stadtkernzentrum von Bremervörde eine größere Gewerbefläche anmieten zu können. Diese ist eingebettet in einen größeren Neubaukomplex mit zwei weiteren Gewerbeflächen mit einer Nutzfläche von ca. 210 m² und ca. 175 m² sowie einer...
Ausstattung
- Überwiegend barrierefreie Gewerbefläche mit viel Potenzial
- Fahrstuhl vorhanden
- Außenlager mit Hallenkran zu bequemen Be- und Entladen
Anbieter der Immobilie
Online-ID: 2nada57
Referenznummer: EV06236
Finde Angebote wie dieses
Hier geht es zu unserem Impressum, den Allgemeinen Geschäftsbedingungen, den Hinweisen zum Datenschutz und nutzungsbasierter Online-Werbung.