
massa haus - Christian Lehmann
Herr Christian Lehmann
+49 ···
Nr. anzeigenPreise & Kosten
Provision für Käufer
provisionsfrei
Lage
Baugrundstück mit guter Anbindung in Gifhorn Gamsen. Sichern Sie sich jetzt Ihr Baugrundstück und planen Ihr individuelles Traumhaus mit Massa Haus darauf.
Sollte Ihnen das Grundstück nicht zusagen, suchen wir gerne für Sie ein anderes!
Wir bauen ihr Traumhaus natürlich auch auf ihrem vorhandenen...
Das Haus
Kategorie
Einfamilienhaus
Baujahr
2025
Energie & Heizung
Warum sehe ich diese Anzeige? – Du siehst diese Anzeige basierend auf Ihrer Navigation auf unserer Website und den Suchkriterien, die du verwendet hast.
Weitere Energiedaten
Heizungsart
Fußbodenheizung
Details
Objektbeschreibung
Nutze jetzt Deine einmalige Chance auf Dein Neubauprojekt in Gifhorn OT Kästorf mit Massa Haus!
Freie Gestaltung gewünscht? Massa machts möglich!
Eigenleistung gewünscht? Willkommen bei Massa Haus!
Top- Preis/Leistungsverhältnis gewünscht? Mit einer Kapazität von bis zu 10 gebauten Häusern am Tag bzw. einem Schnitt...
Ausstattung
Was Dein Massa Haus ausmacht?
- Freie Grundrissgestaltung inklusive (Fenster & Wandverschiebungen)!
- höchste Energieeffizienz bis hin zum Passivhaus
- Sonderkonditionen bei der Finanzierung mit regulären Zinsnachlässen bis zu 0,9% sowie vielen weiteren Vorteilen!
- Baugrundstück
- Festpreisgarantie 15...
Weitere Informationen
Sonstiges
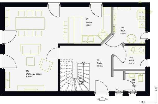
Der angebotene Grundriss passt nicht?
Wähle jetzt zwischen ca. 130 verschieden Haustypen, plane ein zusätzliches Anbauteil oder verlängere Dein Haus nach Belieben!
Bitte beachte dabei, dass es vor allem in ländlichen Gegenden auch Grundstückbedingte Einschränkungen geben kann und möglicherweise nicht alle...
Dokumente
Anbieter der Immobilie
massa haus - Christian Lehmann
Im Moorbusche 15, 38162 Cremlingen
Online-ID: 2nadl56
Referenznummer: 135081348
Finde Angebote wie dieses
Hier geht es zu unserem Impressum, den Allgemeinen Geschäftsbedingungen, den Hinweisen zum Datenschutz und nutzungsbasierter Online-Werbung.