
Katzmann Immobilien GmbH
Herr Jörg Allmannsberger
+49 ···
Nr. anzeigenPreise & Kosten
Provision für Käufer
Bitte beachte, das Angebot kann bei Vertragsabschluss die Zahlung einer Provision beinhalten. Weitere Informationen erhältst Du vom Anbieter.
Lage
Das Grundstück liegt in einer ruhigen Wohngegend von Srima und bietet dennoch
eine ausgezeichnete Anbindung. Die Entfernung zum Strand beträgt nur 180 Meter,
was die Nähe zum Meer und maritimen Freizeitaktivitäten garantiert. Das
Ortszentrum ist etwa 450 Meter entfernt und bietet alle notwendigen Einrichtungen
des...
Das Grundstück
Details
Objektbeschreibung
In ruhiger Lage des beliebten Küstenortes Srima präsentiert sich dieses attraktive
Baugrundstück mit einer Fläche von 404 Quadratmetern. Die Entfernung zum
Strand beträgt lediglich 180 Meter, was diese Parzelle zu einer ausgezeichneten
Gelegenheit für den Bau eines Feriendomizils oder einer dauerhaften Residenz...
Weitere Informationen
Sonstiges
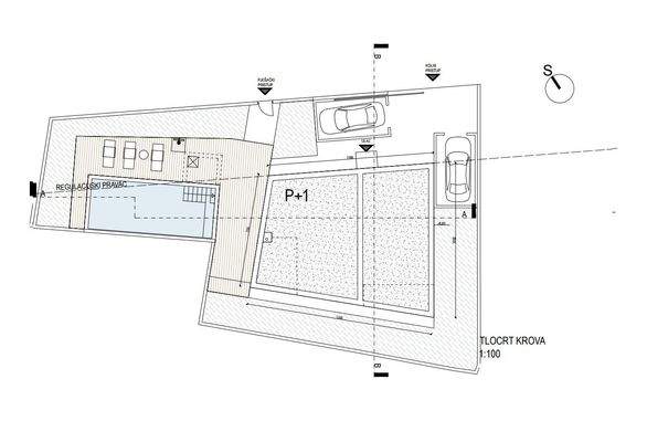
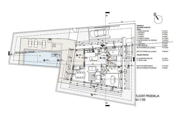
Für das Grundstück liegt eine gültige Baugenehmigung für den Bau eines
freistehenden Wohnobjekts vor. Das genehmigte Projekt umfasst:
- Freistehandes Gebäude mit Erdgeschoss und Obergeschoss
- Bruttogesamtfläche von 157 Quadratmetern
- Swimmingpool mit 27 Quadratmetern
Der Baubeginn kann sofort...
Anbieter der Immobilie
Online-ID: 2narl52
Referenznummer: KJA-00001
Finde Angebote wie dieses
Hier geht es zu unserem Impressum, den Allgemeinen Geschäftsbedingungen, den Hinweisen zum Datenschutz und nutzungsbasierter Online-Werbung.