
Lauser Immobilien
Herr Dennis Gärtner
+49 ···
Nr. anzeigenPreise & Kosten
Kaution
Drei Kaltmieten
Warum sehe ich diese Anzeige? – Du siehst diese Anzeige basierend auf Ihrer Navigation auf unserer Website und den Suchkriterien, die du verwendet hast.
Lage
Sonnenberg bietet eine ausgesprochen hohe Lebensqualität und zählt dank seiner ruhigen, grünen und zugleich stadtnahen Höhenlage zu den gefragtesten Stuttgarter Wohnadressen. Eine Stadtbahnhaltestelle der Linien U5, U6, U8 und U12 befindet sich in kurzer fußläufiger Entfernung. Auch die Autobahn, der Flughafen sowie die...
Die Wohnung
Wohnungslage
Erdgeschoss
Bezug
01.03.2026
Wohnanlage
Details
Objektbeschreibung
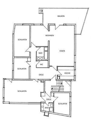
Vermietet wird eine großzügige Fünf-Zimmer-Wohnung im Gartengeschoss eines Mehrfamilienhauses in ruhiger Hanglage von Stuttgart-Sonnenberg. Zur Wohnung gehören zwei Außenstellplätze und zwei Kellerräume.
Ausstattung
Diese außergewöhnlich großzügige Fünf-Zimmer-Wohnung ist aus der Zusammenlegung zweier Wohneinheiten entstanden und überzeugt durch ein weitläufiges, flexibel nutzbares Raumkonzept mit besonderem Wohnkomfort.
Die Wohnräume sind mit Holz- und Vinylböden ausgestattet, während Küche, Badezimmer und das separate Gäste-WC...
Preisinformation
Nettokaltmiete: 2.700,00 EUR
Weitere Informationen
Sonstiges
Der Energieausweis wurde beantragt.
2 PKW-Außernstellplätze
2 Kellerräume
Kehrwoche
Anbieter der Immobilie

Lauser Immobilien
Laustraße 22, 70597 Stuttgart
Online-ID: 2nawu57
Referenznummer: 5385
Finde Angebote wie dieses
Hier geht es zu unserem Impressum, den Allgemeinen Geschäftsbedingungen, den Hinweisen zum Datenschutz und nutzungsbasierter Online-Werbung.