

DAHLER Potsdam | Berlin-Wannsee | Kleinmachnow
Herr Phillip Quednau
033 ···
Nr. anzeigenPreise & Kosten
Provision für Käufer
3,57% inkl. MwSt. bezogen auf den beurkundeten Kaufpreis
Lage
Potsdam-Babelsberg gehört zu den etablierten und zugleich lebendigen Wohnlagen der Region. Der Stadtteil verbindet historische Architektur mit einem urbanen Lebensumfeld und einer ausgeprägten Nähe zur Natur. Charakteristisch sind die gewachsenen Quartiere mit sanierten Altbauten, Weberhäusern, Gründerzeitvillen und modernen...
Die Wohnung
Wohnungslage
Dachgeschoss
Wohnanlage
Energie & Heizung
Warum sehe ich diese Anzeige? – Du siehst diese Anzeige basierend auf Ihrer Navigation auf unserer Website und den Suchkriterien, die du verwendet hast.
Energieausweistyp
Verbrauchsausweis
Gebäudetyp
Wohngebäude
Wesentliche Energieträger
GAS
Gültigkeit
bis 02.06.2035
Effizienzklasse
B
Endenergieverbrauch
50,30 kWh/(m²·a)
Weitere Energiedaten
Heizungsart
offener Kamin, Zentralheizung
Details
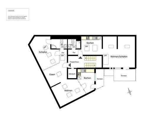
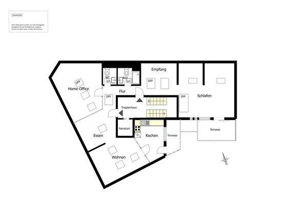
Objektbeschreibung
Diese Dachgeschosswohnung in einem Neubau aus dem Jahr 2021 vereint modernes Wohnen mit klarer Architektur und einer ruhigen Lage im grünen Babelsberg. Mit einer Wohnfläche von ca. 130 m² erstreckt sich die Einheit über das gesamte 5. Obergeschoss und bietet ein durchdachtes Raumkonzept mit hochwertigen Ausstattungsdetails...
Ausstattung
. Neubau aus dem Jahr 2021
. Großzügige Dachgeschosswohnung über das gesamte 5. Obergeschoss
. Ca. 130 m² Wohnfläche
. Ruhige Ausrichtung zum begrünten Innenhof
. 2 Balkone mit hochwertigem Sicht- und Sonnenschutz
. Massiv gegossenes Dach mit sehr guter Temperaturstabilität
. Automatisierte Dachfenster mit...
Preisinformation
1 Stellplatz
Weitere Informationen
Sonstiges
hre Werte sind bei uns in besten Händen
DAHLER ist auf die Vermittlung hochwertiger Wohnimmobilien in bevorzugten Lagen spezialisiert. Seit über 30 Jahren wird unser Unternehmen von Kirsten und Björn Dahler geführt und setzt mit Innovationskraft und Servicequalität Maßstäbe in der Branche. Unsere mehr als...
Anbieter der Immobilie

Online-ID: 2nb2q53
Referenznummer: D-POT8840-LIV
Finde Angebote wie dieses
Hier geht es zu unserem Impressum, den Allgemeinen Geschäftsbedingungen, den Hinweisen zum Datenschutz und nutzungsbasierter Online-Werbung.