
Alexander Thiem Immobilien
Frau Lisa Ramming
004 ···
Nr. anzeigenPreise & Kosten
Kaution
3.000,00
Warum sehe ich diese Anzeige? – Du siehst diese Anzeige basierend auf Ihrer Navigation auf unserer Website und den Suchkriterien, die du verwendet hast.
Lage
östliches Stadtgebiet
91257 Pegnitz
Die Wohnung befindet sich in ruhiger und dennoch zentraler Lage von Pegnitz.
Einkaufsmöglichkeiten, Schulen. Kindergarten und öffentliche Verkehrsmittel sind bequem und fußläufig erreichbar.
Die nahe Anbindung an die Autobahn A9 und den Bahnhof ermöglicht schnelle...
Die Wohnung
Bezug
Dez 25 / Jan 26
Wohnanlage
Energie & Heizung
Warum sehe ich diese Anzeige? – Du siehst diese Anzeige basierend auf Ihrer Navigation auf unserer Website und den Suchkriterien, die du verwendet hast.
Energieausweistyp
Verbrauchsausweis
Gebäudetyp
Wohngebäude
Baujahr laut Energieausweis
1985
Wesentliche Energieträger
GAS
Gültigkeit
bis 20.02.2029
Effizienzklasse
D
Endenergieverbrauch
107,00 kWh/(m²·a)
Weitere Energiedaten
Heizungsart
Zentralheizung
Details
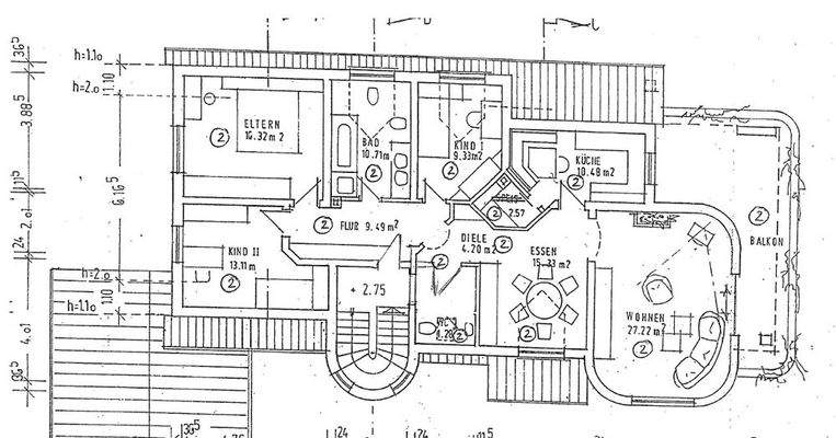
Objektbeschreibung
Ihre neue und sehr gepflegte 4,5-Zimmer Wohnung befindet sich im Dachgeschoss eines Zweifamilienhauses und überzeugt durch ihre angenehme Wohnlage mit herrlichem Blick auf den Schlossberg von Pegnitz.
Eckdaten der Wohnung:
.verkehrsberuhigte Anliegerstraße ohne Durchgangsverkehr
.helle, freundliche Gesamtwirkung...
Ausstattung
Attraktive und helle 4,5-Zimmer-Wohnung mit ansprechendem Grundriss auf ca. 117 m² Wohnfläche.
.großzügiger, einladender Eingangsbereich mit Platz für Garderobe
.helles, weitläufiges Wohnzimmer mit direktem Zugang zum Balkon
.überdachter, großflächiger Balkon mit attraktivem Ausblick ins Grüne und angenehmer...
Preisinformation
1 Garagenstellplatz
Weitere Informationen
Sonstiges
Änderungen und Zwischenvermietung vorbehalten.
Gerne vereinbaren wir einen Besichtigungstermin - sprechen Sie uns einfach an!
Die Angaben in diesem Exposé erfolgen unter Ausschluss jeglicher Haftung, soweit diese nicht auf einer vorsätzlichen oder grobfahrlässigen Pflichtverletzung beruhen. Unser...
Anbieter der Immobilie
Online-ID: 2nb4m5b
Referenznummer: 25-186B
Finde Angebote wie dieses
Hier geht es zu unserem Impressum, den Allgemeinen Geschäftsbedingungen, den Hinweisen zum Datenschutz und nutzungsbasierter Online-Werbung.