
AmRhein ImmobilienManagement GmbH
Herr Max Veltens
017 ···
Nr. anzeigenPreise & Kosten
Provision für Käufer
Die Courtage in Höhe von 2,38% (inkl. MwSt) beläuft sich auf den Kaufpreis.
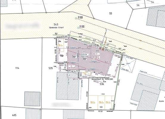
Das Grundstück
Details
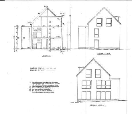
Objektbeschreibung
Zum Verkauf steht ein attraktives Baugrundstück mit bereits genehmigtem Bauprojekt für ein hochwertiges Mehrfamilienhaus mit drei Wohneinheiten. Die geplante Immobilie bietet insgesamt 292,80 m² Wohnfläche, verteilt auf drei komfortable und großzügige Wohnungen. Hinzu kommen 25,20 m² Nutzfläche, die zusätzlichen Stauraum und...
Ausstattung
Bei Interesse können weitere Unterlagen gerne zur Verfügung gestellt werden.
Weitere Informationen
Sonstiges
Die oben angegebene Außenprovision i.H.v 2,38% (inkl. MwSt) ist mit der notariellen Beurkundung des Kaufvertrages durch den Käufer fällig.
Die hier genannten Daten und Fakten beruhen auf den Angaben des Verkäufers. Für die Richtigkeit und Vollständigkeit wird keine Gewähr übernommen.
Anbieter der Immobilie
AmRhein ImmobilienManagement GmbH
Neuenhöfer Allee 49-51, 50935 Köln
Online-ID: 2nb8c59
Referenznummer: AMRhein_2026_387
Finde Angebote wie dieses
Hier geht es zu unserem Impressum, den Allgemeinen Geschäftsbedingungen, den Hinweisen zum Datenschutz und nutzungsbasierter Online-Werbung.