
Mietwelten Zwickau
Frau Silke Kunstmann
004 ···
Nr. anzeigenPreise & Kosten
Kaution
1.080,00 2 KM
Warum sehe ich diese Anzeige? – Du siehst diese Anzeige basierend auf Ihrer Navigation auf unserer Website und den Suchkriterien, die du verwendet hast.
Lage
Der historische Hauptmarkt ist das Herzstück der schönen Zwickauer Innenstadt. Neben dem Rathaus und dem Zwickauer Stadttheater finden Sie hier eine Vielzahl von Dienstleistungen, wie Banken, Ämter, Arztpraxen, Kanzleien und Büros. Der Standort ist darüber hinaus nicht nur eine attraktive Geschäftslage, sondern auch als...
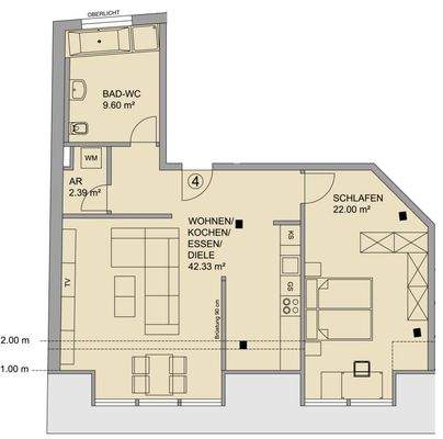
Die Wohnung
Wohnungslage
3. Geschoss (Dachgeschoss)
Bezug
01.04.2026
Wohnanlage
Energie & Heizung
Warum sehe ich diese Anzeige? – Du siehst diese Anzeige basierend auf Ihrer Navigation auf unserer Website und den Suchkriterien, die du verwendet hast.
Energieausweis: für diesen Gebäudetyp nicht notwendig
Weitere Energiedaten
Energieträger
Fernwärme
Heizungsart
Zentralheizung
Details
Objektbeschreibung
Gepflegte gemütliche Dachgeschoßwohnung in super zentraler Lage direkt am Hauptmarkt! Großer heller Wohnbereich mit offener Küche, Bad mit Fenster, Wanne und Dusche, Aufzug bis in die Wohnetage, geräumiges Schlafzimmer
Ausstattung
- heller Laminatboden in den Zimmern
- großes Bad mit Oberlicht
- Badewanne und Dusche
- separater Abstellraum mit WM-Anschluss
- Aufzug
- Zentralheizung
- Verschließbarer Keller
Weitere Informationen
Sonstiges
2 KM Kaution
Stichworte
Gesamtfläche: 76,83 m², Anzahl der Schlafzimmer: 1, Anzahl der Badezimmer: 1, Bundesland: Sachsen, 3 Etagen, Wohnungsnr.: 4
Anbieter der Immobilie
Mietwelten Zwickau
Magazinstrasse 8-10, 08056 Zwickau
Online-ID: 2nbbq52
Referenznummer: 1324_2
Finde Angebote wie dieses
Hier geht es zu unserem Impressum, den Allgemeinen Geschäftsbedingungen, den Hinweisen zum Datenschutz und nutzungsbasierter Online-Werbung.