
GEWOBA Nord Baugenossenschaft eG
Sabina Rohde
Kontaktiere den Anbieter schriftlich, es ist keine Telefonnummer hinterlegt.
Preise & Kosten
nicht in Warmmiete enthalten
Kaution
1.194,00
Warum sehe ich diese Anzeige? – Du siehst diese Anzeige basierend auf Ihrer Navigation auf unserer Website und den Suchkriterien, die du verwendet hast.
Lage
Verlässt man Husum nordwärts in Richtung Schobüll, fällt kurz vor der Ortsgrenze das Baugebiet "Hockensbüll" ins Auge. Es Überzeugt durch seine ruhige Lage sowie die vielen Spielmöglichkeiten für Kinder und ist dadurch besonders für junge Familien ein beliebtes Wohngebiet. Eine Busanbindung ermöglicht das schnelle Erreichen...
Die Wohnung
Wohnungslage
1. Geschoss
Bezug
01.04.2026
Wohnanlage
Energie & Heizung
Warum sehe ich diese Anzeige? – Du siehst diese Anzeige basierend auf Ihrer Navigation auf unserer Website und den Suchkriterien, die du verwendet hast.
Energieausweistyp
Bedarfsausweis
Gebäudetyp
Wohngebäude
Baujahr laut Energieausweis
2017
Wesentliche Energieträger
Gas
Effizienzklasse
A
Endenergiebedarf
32,40 kWh/(m²·a)
Weitere Energiedaten
Energieträger
Gas
Heizungsart
Zentralheizung
Details
Objektbeschreibung
Objektreferenz: 1.554.102.1015
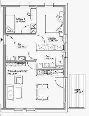
Die Wohnungen in der Stettiner Straße bieten moderne und lichtdurchflutete 2- sowie 3-Zimmerwohnungen mit einem Balkon oder einer Terrasse im Erdgeschoss.
Weitere Informationen
Sonstiges
HINWEIS ZUR BEWERBUNG:
Um Ihnen den bestmöglichen Service zu bieten, können Sie sich bei uns digital bewerben. Kopieren Sie den untenstehenden Link in die Adresszeile Ihres Browsers und folgen Sie der Anleitung.
...
Dokumente
Anbieter der Immobilie
GEWOBA Nord Baugenossenschaft eG
Moltkestr. 32, 24837 Schleswig
Sabina Rohde
Dein Ansprechpartner
Kontaktiere den Anbieter schriftlich, es ist keine Telefonnummer hinterlegt.
Online-ID: 2nbdl5c
Referenznummer: 1.554.102.1015-esticb
Finde Angebote wie dieses
Hier geht es zu unserem Impressum, den Allgemeinen Geschäftsbedingungen, den Hinweisen zum Datenschutz und nutzungsbasierter Online-Werbung.