
WIBAG Immobilienmanagement GmbH & Co. KG
Firma WIBAG Service-Team
030 ···
Nr. anzeigenPreise & Kosten
Provision für Mieter
provisionsfrei
Warum sehe ich diese Anzeige? – Du siehst diese Anzeige basierend auf Ihrer Navigation auf unserer Website und den Suchkriterien, die du verwendet hast.
Büro-/Praxisfläche
Kategorie
Bürofläche
Bezug
sofort
Derzeitige Nutzung
frei
Geschoss
2. Geschoss
Energie & Heizung
Warum sehe ich diese Anzeige? – Du siehst diese Anzeige basierend auf Ihrer Navigation auf unserer Website und den Suchkriterien, die du verwendet hast.
Wärme
Strom
Energieausweistyp
Bedarfsausweis
Gebäudetyp
Nicht-Wohngebäude
Baujahr laut Energieausweis
2022
Wesentliche Energieträger
Fernwärme
Gültigkeit
11.08.2022 bis 10.08.2032
Endenergiebedarf (Wärme)
164,00 kWh/(m²·a)
Endenergiebedarf (Strom)
25,00 kWh/(m²·a)
Weitere Energiedaten
Energieträger
Fernwärme
Heizungsart
Zentralheizung
Details
Objektbeschreibung
PROVISIONSFREI für Mieter/in
Repräsentative Büroflächen
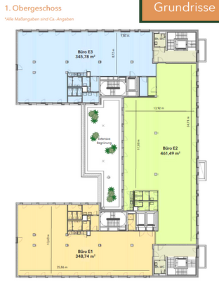
+ verfügbare Mietflächen: 345 m², 461 m², 566 m², 1.156 m² und 2.302 m²
+ sehr gute Lage nahe BER und S- Bahnhof Grünbergallee
+ verkehrsgünstig - dennoch ruhig gelegen
+ hochwertige Büroeinheit im 1.OG und 2.OG
+...
Ausstattung
Angaben des Vermieters:
• Baujahr 2022/23
• Büroetagen barrierefrei nutzbar
• zwei separiert vom Hotel zugängliche Hauseingänge zu den Büros
• Mietbereiche flexibel, offen oder getrennt
• Lichte Raumhöhe Arbeitsbereiche ca. 2,90 m
• Lichte Raumhöhe Nebenbereiche ca. 2,45 m
•...
Weitere Informationen
Sonstiges
Der Energieausweis liegt vor und wird mit unserem Exposé verschickt und/oder bei einer Objektbegehung vom Vermietervertreter überreicht.
Gern senden wir Ihnen unser ausführliches Exposé.
Wir freuen uns auf Ihre Anfrage über das Kontaktformular oder per E-Mail...
Anbieter der Immobilie
WIBAG Immobilienmanagement GmbH & Co. KG
Friedrichstraße 171, 10117 Berlin (Mitte)
Online-ID: 2nbke5a
Referenznummer: 24101219B11562801
Finde Angebote wie dieses
Hier geht es zu unserem Impressum, den Allgemeinen Geschäftsbedingungen, den Hinweisen zum Datenschutz und nutzungsbasierter Online-Werbung.