
OTTO Immobilien
Frau Magdalena Lemut, BSc (WU)
004 ···
Nr. anzeigenPreise & Kosten
inkl. Betriebskosten
Kaution
6 BMM
Provision für Mieter
Bitte beachte, das Angebot kann bei Vertragsabschluss die Zahlung einer Provision beinhalten. Weitere Informationen erhältst Du vom Anbieter.
Warum sehe ich diese Anzeige? – Du siehst diese Anzeige basierend auf Ihrer Navigation auf unserer Website und den Suchkriterien, die du verwendet hast.
Lage
Die zentrale Lage in der Zollergasse besticht durch ihre Nähe zur Mariahilfer Straße, einer der beliebtesten Einkaufs- und Flaniermeilen Wiens. Zahlreiche Geschäfte, Cafés und Restaurants befinden sich in unmittelbarer Umgebung. Hervorragende öffentliche Verkehrsanbindungen ermöglichen eine unkomplizierte...
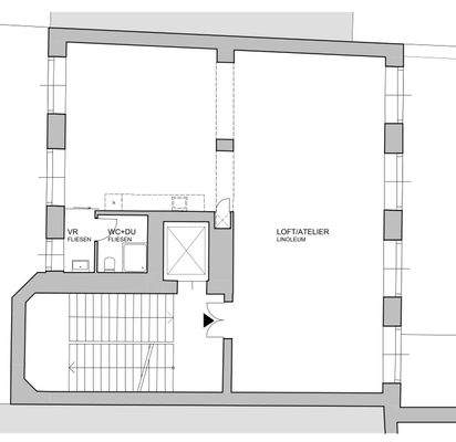
Büro-/Praxisfläche
Kategorie
Bürofläche
Baujahr
1904
Bezug
Nach Vereinbarung
Geschoss
3. Geschoss
Energie & Heizung
Warum sehe ich diese Anzeige? – Du siehst diese Anzeige basierend auf Ihrer Navigation auf unserer Website und den Suchkriterien, die du verwendet hast.
Heizwärmebedarf (HWB)
183,30 kWh/(m²·a)
Gesamtenergieeffizienz (fGEE)
1,98
Weitere Energiedaten
Heizungsart
Zentralheizung
Details
Objektbeschreibung
Dieses charmante Atelier in der Zollergasse, nur wenige Schritte von der Mariahilfer Straße entfernt, bietet eine ideale Kombination aus Kreativität und Funktionalität. Die Räumlichkeiten überzeugen mit hellen, großzügigen Flächen und einer flexiblen Nutzung, perfekt für Künstler, Freiberufler oder Unternehmer.
Die...
Ausstattung
- repräsentativer Eingangsbereich
- loft/atelier-artiges Büro
- Bad mit Dusche
- öffenbare Fenster
- hohe Decken
- Lift
Preisinformation
Nettokaltmiete: 2.109,38 EUR
Weitere Informationen
Stichworte
Nutzfläche: 111,02 m², Bundesland: Wien, modernisiert: 2023, Mindestmietdauer: 3 Jahre
Anbieter der Immobilie
OTTO Immobilien
Riemergasse 8, 1010 WIEN
Online-ID: 2nbll56
Referenznummer: IVG-O-12298/21
Finde Angebote wie dieses
Hier geht es zu unserem Impressum, den Allgemeinen Geschäftsbedingungen, den Hinweisen zum Datenschutz und nutzungsbasierter Online-Werbung.