

Einfamilienhaus zum Kauf750000 €5.751 €/m²5 Zimmer • 130,4 m² • 533 m² Grundstück • frei ab sofort
750000 €
5.751 €/m²
5 Zimmer • 130,4 m² • 533 m² Grundstück • frei ab sofort
Modernes freistehendes EFH mit EBK, Garage und PV Anlage! Ruhige AnliegerstraĂźe!
Merkmale
- frei ab sofort
- 533 m² Grundstück
- EinbaukĂĽche, offene KĂĽche
- Keller
- Garage, AuĂźen-Stellplatz
- 2 WCs
- 2 Terrassen
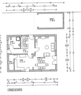
Grundrisse
Grundrisse
1 / 3
Realisiere Dein Projekt
Bausubstanz und Energie
Energieausweis
- Baujahr2009
- Letzte Modernisierung2023
- Zustand der Immobilieneuwertig
- HaustypKfW 60
- HeizungsartZentralheizung: FuĂźbodenheizung
- EnergieträgerGas, Solar
Preisdetails
Kaufpreis
750000 €
5.750,65 €/m²
Provision für Käufer
Nach erfolgreichem Kaufvertragsabschluss zahlt der Käufer und der Verkäufer je 2 % des Kaufpreises zzgl. der ges. MwSt.
Geschätzte Gesamtkosten
806.250 €1
Kaufpreis
750.000 €
Kaufnebenkosten
56.250 €
2Notarkosten (1,5%)
11.250 €
Grunderwerbsteuer (3,5%)
26.250 €
Provision für Käufer (2%)
15.000 €
Grundbucheintrag (0,5%)
3.750 €
1Der angezeigte Wert ist eine automatisch berechnete Schätzung von immowelt.
2Bei den Angaben handelt es sich um ortsübliche Werte. Individuelle Kosten können abweichen.
Lage

Obermeitingen (86836)
Der Anbieter hat die genaue Adresse nicht freigegeben
Weitere Services
Lust auf eine Besichtigung?
Eine Frage zur Immobilie?
Ăśber den Anbieter
home Immobilien GmbHMaklerbĂĽro
Oberer Graben 25, 86152 Augsburg
Partnerschaft

Frau Christiane LembertDein Kontakt
Weitere Unterlagen
Online-ID: 2nbmm52


home Immobilien GmbH
Bewertung: 4 von 5 Sternen
Wie zufrieden bist du mit dieser Seite (nicht mit der Immobilie selbst)?

