TRISTAR Immobilien GmbH & Co KG

TRISTAR Immobilien

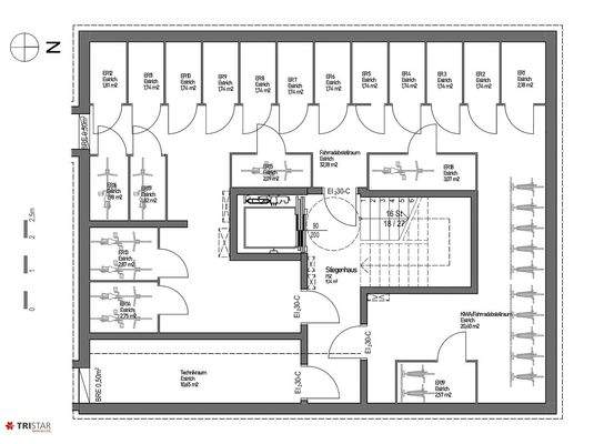
NEU! Photovoltaikanlage . Bezugsfertig . 19 Eigentumswohnungen . Schlüsselfertig . Urban + Natur . 1220 Wien . Balkon / Terrasse / Loggia / Garten . 2

€ 219.000
Kaufpreis
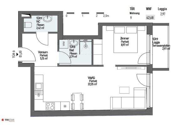
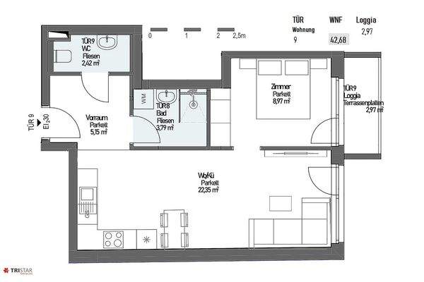
45,65 m²
Wohnfläche ca.
2
Zimmer
Finanzierung berechnen mit durchblicker

Der Anbieter dieses Objekts hat gegenüber der AVIV Germany GmbH als Betreiber dieses Online-Marktplatzes erklärt, nicht als Unternehmer im Sinne des § 1 KSchG zu handeln. Die im Verbraucherschutzrecht der Union verankerten Verbraucherrechte (insbesondere Informationspflichten und Rücktritts- bzw. Widerrufsrechte) finden auf den Vertrag zwischen dem Anbieter des Objekts und Ihnen (dem Interessenten) keine Anwendung.

Gewerblicher Anbieter

Der Anbieter dieses Objekts hat gegenüber der AVIV Germany GmbH als Betreiber dieses Online-Marktplatzes erklärt, als Unternehmer im Sinne des § 1 KSchG zu handeln.

AdresseStraße nicht freigegeben
1220 Wien 
(Donaustadt)
Auf Karte ansehen

Preise & Kosten

Kaufpreis € 219.000

Provision für Käufer

3% des Kaufpreises zzgl. 20% USt.

Lage

U2 SEESTADT / LOBAU

Die Wohnung

Wohnungslage

2. Geschoss

Bezug

01.03.2026

  • Bad mit Dusche
  • Garten, Loggia
  • Böden: Fliesenboden, Parkett
  • Zustand: Erstbezug

Wohnanlage

  • Baujahr: 2025
  • Zustand: Neubau
  • Personenaufzug

Energie & Heizung

Heizwärmebedarf (HWB)

B

45,10 kWh/(m²·a)

Gesamtenergieeffizienz (fGEE)

A+

0,70

Weitere Energiedaten

Heizungsart

Fußbodenheizung, Luft-/Wasser-Wärmepumpe

Details

Objektbeschreibung

* PROJEKT:

Zum Verkauf gelangen 19 hochmoderne Neubau-Eigentumswohnungen mit ca. 2-4 Zimmern sowie großzügigen Außenflächen (Loggia / Balkon / Terrasse / Garten).

* STATE-OF-THE-ART-TECHNIK:

Ausstattung: Photovoltaikanlage, Klimaanlage in den Dachgeschossen (Ebene 1 und 2), Luftwärmepumpe...

Mehr anzeigen

Weitere Informationen

Stichworte
Nord-Balkon/Terrasse, Gesamtfläche: 45,65 m², Anzahl der Badezimmer: 1, Anzahl der separaten WCs: 1, Anzahl Loggias: 1, Balkon-Terrassen-Fläche: 2,97 m², Kellerfläche: 1,74 m², Bundesland: Wien, 5 Etagen, Wohnungsnr.: 9A

Anbieter der Immobilie

Partner

TRISTAR Immobilien GmbH & Co KG

Am Hof 5/10, 1010 WIEN

user

TRISTAR Immobilien

Dein Ansprechpartner

Anbieter-Website Anbieter-Profil Anbieter-Impressum

Online-ID: 2nbrv56

Referenznummer: OBGC20260120155154921e8b0675c19

Finde Angebote wie dieses

imageimageimage

Günstige Immobilienfinanzierung einfach online berechnen

Persönliches Angebot berechnen

Hier geht es zu unserem Impressum, den Allgemeinen Geschäftsbedingungen, den Hinweisen zum Datenschutz und nutzungsbasierter Online-Werbung.