

tell immobilien e.K.
Herr Franz Stallenberger
+49 ···
Nr. anzeigenPreise & Kosten
Provision für Käufer
provisionsfrei
Lage
Das Grundstück liegt eingebettet in einer Wohnsiedlung in Malgersdorf, erschlossen durch eine ruhige Siedlungsstraße ohne Durchgangsverkehr, mit Wendehammer.
In Malgersdorf befindet sich eine Bäckerei mit EDEKA-Laden und eine Metzgerei, sowie eine Landgaststätte und eine Tankstelle mit "Shop".
Dingolfing, Landau...
Das Haus
Kategorie
Reihenendhaus
Geschosse
3 Geschosse
Baujahr
2026
Bezug
Ende 2026
Energie & Heizung
Warum sehe ich diese Anzeige? – Du siehst diese Anzeige basierend auf Ihrer Navigation auf unserer Website und den Suchkriterien, die du verwendet hast.
Energieausweistyp
Bedarfsausweis
Gebäudetyp
Wohngebäude
Baujahr laut Energieausweis
2026
Wesentliche Energieträger
Luft/Wasser-Wärmepumpe
Gültigkeit
08.09.2024 bis 07.09.2034
Effizienzklasse
A+
Endenergiebedarf
11,00 kWh/(m²·a)
Weitere Energiedaten
Haustyp
KfW 40
Energieträger
Elektro
Heizungsart
Fußbodenheizung, Luft-/Wasser-Wärmepumpe
Details
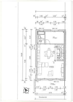
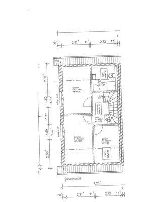
Objektbeschreibung
Sehr geehrte Leserinnen und Leser dieses Exposés,
dieses top moderne Reihenhaus in Massiv-Bauweise wird errichtet im
"Effizienzhaus-40-Standard" inklusive einer Photo-Voltaik-Anlage auf dem Dach,
mit 5 Zimmern, 2 Bädern und einer Garage im Untergeschoss für 2 Kfz, sowie einem weiteren Kfz-Außenstellplatz.
Es...
Ausstattung
Das Haus:
Reihen-Endhaus in moderner Massiv-Bauweise, Außenwände errichtet mit Ytong-Plansteinen. Außenwände 36,5cm, tragende Innenwände aus Ytong-Mauerwerk mit einer Stärke von 17,5cm, nichttragende Wände mit einer Stärke von 11,5cm,
- Das Haus ist ein sog. Hanghaus, Garage für 2 Fahrzeuge im Untergeschoss,
...
Weitere Informationen
Sonstiges
Der Kaufpreis
beträgt EURO 370.000,-- für das Haus mit Garten, Luft-Wärmepumpe, PV-Anlage,
Garage für 2 Fahrzeuge und den Außenstellplatz.
Keine Käuferprovision!
Anbieter der Immobilie

Online-ID: 2nbvb58
Referenznummer: 01744
Finde Angebote wie dieses
Hier geht es zu unserem Impressum, den Allgemeinen Geschäftsbedingungen, den Hinweisen zum Datenschutz und nutzungsbasierter Online-Werbung.