
Dipl. Ing. Kühne GmbH
Herr Uwe Strietzel
017 ···
Nr. anzeigenPreise & Kosten
Kaution
4.991,49
Provision für Mieter
provisionsfrei
Warum sehe ich diese Anzeige? – Du siehst diese Anzeige basierend auf Ihrer Navigation auf unserer Website und den Suchkriterien, die du verwendet hast.
Büro-/Praxisfläche
Kategorie
Bürofläche
Baujahr
1900
Bezug
nach Vereinbarung
Geschoss
Erdgeschoss
Energie & Heizung
Warum sehe ich diese Anzeige? – Du siehst diese Anzeige basierend auf Ihrer Navigation auf unserer Website und den Suchkriterien, die du verwendet hast.
Weitere Energiedaten
Heizungsart
Zentralheizung
Details
Objektbeschreibung
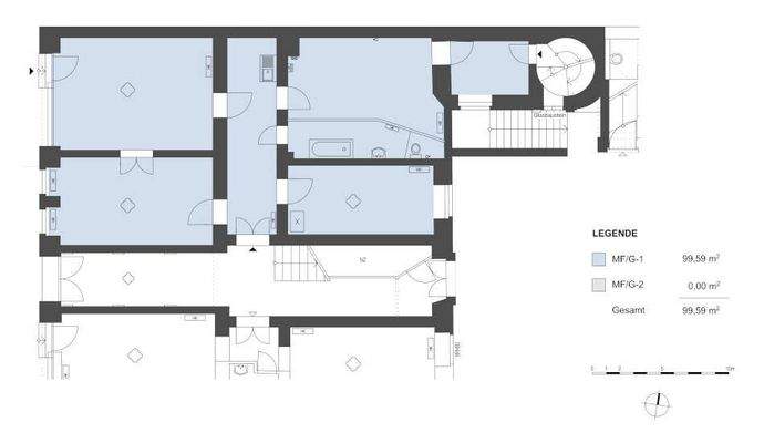
Die Bürofläche liegt im Erdgeschoss, einem gepflegten Mehrfamilienhaus.
Man kann diese Büros von der Straße oder dem Hausflur betreten.
Jedes Büro lässt sich separat durch den Flur betreten.
Eine moderne Gasbrennwerttherme sogt für die Heizung und Warmwasserversorgung. Hinweis zum Energieausweis: Energieausweistyp...
Ausstattung
Besondere Ausstattungsmerkmale: Kabelkanäle vorhanden
Weitere Informationen
Sonstiges
Alle INFORMATIONEN ZU DIESEM ANGEBOT, mehr Fotos sowie Pläne/Grundriss bekommen Sie über das Expose auf unserer Internetseite. Die vollständige ANSCHRIFT können Sie ebenfalls über das Kontaktfeld im Expose auf unserer Internetseite anfordern. Verwenden Sie dazu diesen Link: https://KuehneGmbH.de/330008182 .
...
Anbieter der Immobilie

Dipl. Ing. Kühne GmbH
Brandensteinweg 6, 13595 Berlin
Online-ID: 2nbzf59
Referenznummer: 330008182
Finde Angebote wie dieses
Hier geht es zu unserem Impressum, den Allgemeinen Geschäftsbedingungen, den Hinweisen zum Datenschutz und nutzungsbasierter Online-Werbung.