Bien-Zenker Musterhaus Wuppertal

Herr Sven Sommerfeld

schönes Baugrundstück inkl. Traumhaus in höchster Bauqualität

€ 580.199
Kaufpreis
145 m²
Wohnfläche ca.
5,5
Zimmer
626 m²
Grundstücksfl. ca.

Der Anbieter dieses Objekts hat gegenüber der AVIV Germany GmbH als Betreiber dieses Online-Marktplatzes erklärt, nicht als Unternehmer im Sinne des § 1 KSchG zu handeln. Die im Verbraucherschutzrecht der Union verankerten Verbraucherrechte (insbesondere Informationspflichten und Rücktritts- bzw. Widerrufsrechte) finden auf den Vertrag zwischen dem Anbieter des Objekts und Ihnen (dem Interessenten) keine Anwendung.

Gewerblicher Anbieter

Der Anbieter dieses Objekts hat gegenüber der AVIV Germany GmbH als Betreiber dieses Online-Marktplatzes erklärt, als Unternehmer im Sinne des § 1 KSchG zu handeln.

AdresseStraße nicht freigegeben
49545 Tecklenburg 
Auf Karte ansehen

Preise & Kosten

Kaufpreis € 580.199

Provision für Käufer

Bitte beachte, das Angebot kann bei Vertragsabschluss die Zahlung einer Provision beinhalten. Weitere Informationen erhältst Du vom Anbieter.

Lage

Das Grundstück am Gerichtsweg in Tecklenburg liegt in einer außergewöhnlich ruhigen und gewachsenen Wohnlage, eingebettet in viel Grün und abseits vom Durchgangsverkehr. Tecklenburg steht für historische Substanz, landschaftliche Qualität und ein Wohnumfeld, das bewusst gewählt wird - nicht zufällig.

Dieses Grundstück...

Mehr anzeigen

Das Haus

Kategorie

Einfamilienhaus

  • Zustand: projektiert
  • Bad mit Fenster, Wanne und Dusche
  • offene Küche

Energie & Heizung

Weitere Energiedaten

Haustyp

KfW 40

Heizungsart

Luft-/Wasser-Wärmepumpe

Details

Objektbeschreibung

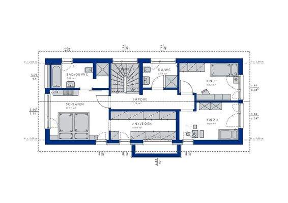
Das Fertighaus BALANCE 145 von Bien-Zenker präsentiert sich in Tecklenburg als wahres Schmuckstück, das sowohl von außen als auch von innen begeistert. Die einladende Fassade strahlt Freundlichkeit und Wärme aus, während das durchdachte Raumkonzept Ihnen ein Höchstmaß an Funktionalität bietet. Mit 145 m² Wohnfläche und 5.5...

Mehr anzeigen

Ausstattung

In diesem Zuhause ist der Grundriss optimal auf die Bedürfnisse von Familien abgestimmt. Mit fünf Zimmern bietet das BALANCE 145 ausreichend Platz für alle Familienmitglieder. Im Erdgeschoss ist der offene Wohnbereich das Herzstück - hier fließen Wohn- und Essbereich harmonisch zusammen und schaffen eine einladende Atmosphäre...

Mehr anzeigen

Weitere Informationen

Sonstiges
Sonstiges
Um Bauherren im hochwertigen Neubausegment im gesamten Ruhrgebiet zuverlässig zu begleiten, arbeite ich mit einem gewachsenen Netzwerk aus Architekten, Vermessern, Finanzierungspartnern und regionalen Grundstückseigentümern zusammen.
Durch meine Tätigkeit für Bien-Zenker sowie die enge Kooperation...

Mehr anzeigen

Anbieter der Immobilie

Partner

Bien-Zenker Musterhaus Wuppertal

im Durchschnitt  5,00  Sterne
(bei 1 Bewertungen)

Schmiedestraße 59, 42279 Wuppertal

user

Herr Sven Sommerfeld

Dein Ansprechpartner

Anbieter-Website Anbieter-Profil Anbieter-Impressum

Online-ID: 2nc5u52

Referenznummer: 12216-Tecklenburg26031

Finde Angebote wie dieses

imageimageimage

Hier geht es zu unserem Impressum, den Allgemeinen Geschäftsbedingungen, den Hinweisen zum Datenschutz und nutzungsbasierter Online-Werbung.