

Aengevelt Immobilien GmbH & Co KG
Frau Neelam Mahtani-Staehle
+49 ···
Nr. anzeigenPreise & Kosten
Provision für Mieter
provisionsfrei
Warum sehe ich diese Anzeige? – Du siehst diese Anzeige basierend auf Ihrer Navigation auf unserer Website und den Suchkriterien, die du verwendet hast.
Lage
Das Bürogebäude befindet sich in verkehrsgünstiger Lage in Wiesbaden. Über die parallel verlaufende Berliner Straße sind sowohl die Innenstadt als auch die nächste Autobahnanbindung (A66) in nur wenigen Minuten bequem erreichbar. Der Anschluss an den öffentlichen Nahverkehr ist durch mehrere Buslinien (10, 11 und 15)...
Büro-/Praxisfläche
Kategorie
Bürofläche
Baujahr
1972
Bezug
nach Vereinbarung
Energie & Heizung
Warum sehe ich diese Anzeige? – Du siehst diese Anzeige basierend auf Ihrer Navigation auf unserer Website und den Suchkriterien, die du verwendet hast.
Weitere Energiedaten
Heizungsart
Zentralheizung
Details
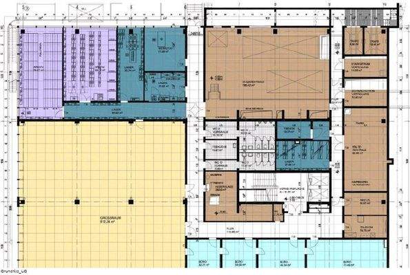
Objektbeschreibung
Das im Jahr 1972 errichtete Gehrmann Haus erstreckt sich über vier Obergeschosse und verfügt zusätzlich über eine Hausmeisterwohnung mit großzügiger Terrasse im fünften Stockwerk. Im Untergeschoss befinden sich neben einzelnen Büroräumen auch eine flexible Mieteinheit, die ideal als Großraumbüro genutzt werden kann, sowie...
Ausstattung
Die Büroflächen zeichnen sich durch flexible Grundrisse aus, die individuell an die Bedürfnisse der Nutzer angepasst werden können. Für wohlige Wärme sorgt eine effiziente Öl-Heizung. Die Verkabelung erfolgt über praktische Sockelkanäle und entspricht dem Standard KAT5, was eine zuverlässige Datenübertragung gewährleistet...
Weitere Informationen
Stichworte
Gesamtfläche: 8.600,00 m², 5 Etagen
Sonstiges: EDV-Verkabelung
Anbieter der Immobilie
Aengevelt Immobilien GmbH & Co KG
Kennedydamm 55/Ross-Strasse, 40476 Düsseldorf

Online-ID: 2ncad5d
Referenznummer: 5919
Finde Angebote wie dieses
Hier geht es zu unserem Impressum, den Allgemeinen Geschäftsbedingungen, den Hinweisen zum Datenschutz und nutzungsbasierter Online-Werbung.