

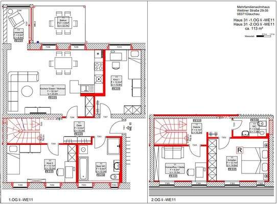
Maisonette zur Miete1.017 €4,5 Zimmer • 113 m² • 3 Geschosse • frei ab 01.07.2026
1.017 €
4,5 Zimmer • 113 m² • 3 Geschosse • frei ab 01.07.2026
4,5-Maisonette-Wohnung ab III. Quartal/2026
Merkmale
- frei ab 01.07.2026
- 3 Geschosse
- offene Küche
- Außen-Stellplatz
- 2 WCs
- Balkon (gesamt 4,9 m²)
- Badezimmer: Badewanne, Bad mit Dusche, Bad mit Fenster
Grundrisse
Grundrisse
1 / 1
Realisiere Dein Projekt
Bausubstanz und Energie
Energieausweis
F
- Baujahr1936
- Letzte Modernisierung2026
- Zustand der ImmobilieSaniert
- HeizungsartZentralheizung: Fußbodenheizung
- EnergieträgerLuft-/Wasser-Wärmepumpe
Mietkosten
Warmmiete
1.377 €
Kaltmiete
9 €/m²
1.017 €
Nebenkosten
205 €
Heizkosten
nicht in Nebenkosten enthalten
155 €
Zusätzliche Kosten
Miete pro Stellplatz
15 €
Kaution
2034 €
Lage

Wettiner Straße 31, Glauchau (08371)
Weitere Services
Lust auf eine Besichtigung?
Eine Frage zur Immobilie?
Über den Anbieter
Sachsenallee 65, 08371 Glauchau
Partnerschaft
Frau Tina DrummerDein Kontakt
Online-ID: 2ncbm52
Referenznummer: 2183/31/7

Stadtbau und Wohnungsverwaltung GmbH Glauchau
Wie zufrieden bist du mit dieser Seite (nicht mit der Immobilie selbst)?

