
HWH Immobilien
Herr Martin Heidtmann
+49 ···
Nr. anzeigenPreise & Kosten
Kaution
3 Monatskaltmieten
Warum sehe ich diese Anzeige? – Du siehst diese Anzeige basierend auf Ihrer Navigation auf unserer Website und den Suchkriterien, die du verwendet hast.
Lage
Zentrale Lage, S-Bahnhof Nord in wenigen Minuten fußläufig erreichbar. Bushaltestelle in circa 2 Minuten Entfernung. Zubringer zur BAB 661 etwa 3 Minuten Fahrtzeit entfernt.
Die Wohnung
Wohnungslage
1. Geschoss
Bezug
nach Vereinbarung
Wohnanlage
Energie & Heizung
Warum sehe ich diese Anzeige? – Du siehst diese Anzeige basierend auf Ihrer Navigation auf unserer Website und den Suchkriterien, die du verwendet hast.
Energieausweistyp
Bedarfsausweis
Gebäudetyp
Wohngebäude
Baujahr laut Energieausweis
2011
Gültigkeit
bis 12.01.2035
Effizienzklasse
C
Endenergiebedarf
79,00 kWh/(m²·a)
Weitere Energiedaten
Energieträger
Gas
Heizungsart
Zentralheizung
Details
Objektbeschreibung
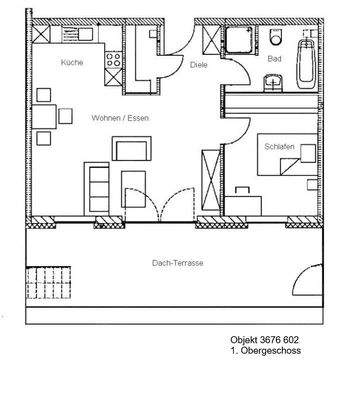
Attraktives 2-Zimmer-Apartment in einem Wohn-/ Geschäftshaus mit Aufzug und gehobener Ausstattung. Das Apartment hat eine geräumige Diele mit Abstellraum, ein exklusives Dusch- und Wannenbad und ein schönes Schlafzimmer. Vom geräumigen Wohn-/ Esszimmer mit offener Küche hat man Zugang auf die Dachterrasse. Das Apartment...
Ausstattung
Die EBK kann gegen Abstand in Höhe von EUR 1.500,- vom Vormieter übernommen werden.
Laminat und Fliesen, Dachterrasse, elektr. Rolläden, Waschküche, Kellerraum
zzgl. EUR 50,00 für den PKW-Stellplatz
Weitere Informationen
Sonstiges
Bitte haben Sie Verständnis dafür, dass wir Anfragen ohne vollständige Kontaktangaben (Anschrift, Telefonnummer) nicht bearbeiten können.
Mit der Immobilienanfrage erklären sich Interessenten einverstanden, dass die HWH-Immobilien wegen Objektangeboten telefonisch, schriftlich oder per E-Mail Kontakt...
Anbieter der Immobilie

HWH Immobilien
Friedberger Straße 102, 61118 Bad Vilbel
Online-ID: 2ncel53
Referenznummer: 3676 602
Finde Angebote wie dieses
Hier geht es zu unserem Impressum, den Allgemeinen Geschäftsbedingungen, den Hinweisen zum Datenschutz und nutzungsbasierter Online-Werbung.