
RE/MAX HIMCON
Frau Stefanie Hoekstra
004 ···
Nr. anzeigenPreise & Kosten
Provision für Käufer
3,57 % inkl. 19% Mehrwertsteuer
Lage
Bad Münster am Stein-Ebernburg liegt im Nahetal im Landkreis Bad Kreuznach in Rheinland-Pfalz und ist seit 2014 ein Stadtteil der Kurstadt Bad Kreuznach. Der Ort befindet sich landschaftlich reizvoll zwischen bewaldeten Hügeln, steilen Felsformationen und den Weinbergen der Nahe und verbindet auf besondere Weise Natur...
Das Haus
Kategorie
Einfamilienhaus
Baujahr
1979
Energie & Heizung
Warum sehe ich diese Anzeige? – Du siehst diese Anzeige basierend auf Ihrer Navigation auf unserer Website und den Suchkriterien, die du verwendet hast.
Energieausweistyp
Bedarfsausweis
Gebäudetyp
Wohngebäude
Baujahr laut Energieausweis
1979
Wesentliche Energieträger
OEL
Gültigkeit
bis 01.12.2035
Effizienzklasse
G
Endenergiebedarf
209,70 kWh/(m²·a)
Weitere Energiedaten
Energieträger
Öl
Details
Objektbeschreibung
Wohnen, wie im Urlaub!
Sie suchen eine ruhige Wohnlage mit einer spektakulären Aussicht?
Dieses gemütliche Haus wird Sie begeistern. Genießen Sie in Ihrem Wintergarten den ersten Kaffee am Morgen oder treffen sich mit Freunden und der Familie.
Das großzügige Wohnzimmer kann mit einem Kaminofen ausgestattet werden...
Ausstattung
- Baujahr Okal Fertighaus Haus: 1979
- Baujahr Wintergarten mit Fußbodenheizung 1998
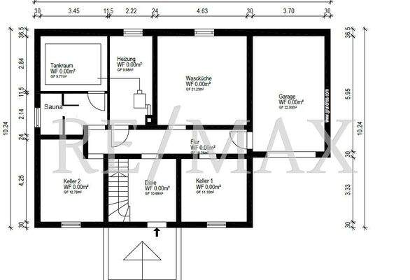
- Wohnfläche ca. 167 m² setzt sich zusammen aus Erdgeschoss ca. 115 m² wo der Wintergarten hälftig mit 14 m² angerechnet wurde und ca. 52 m² wohnlich ausgebauter Speicherraum.
- Nutzfläche im Keller ca. 92 m²
- Badezimmer im EG...
Preisinformation
1 Stellplatz
1 Garagenstellplatz
Weitere Informationen
Sonstiges
Um Ihre Anfrage möglichst schnell bearbeiten zu können, bitten wir um schriftliche Kontaktaufnahme mit Ihren vollständigen Kontaktdaten.
Texte und Fotos:
Unsere Exposétexte erstellen wir selbst, nutzen aber an bestimmten Stellen KI-Anwendungen zur Bearbeitung.
Fotos werden gegebenenfalls mit Hilfe von KI...
Anbieter der Immobilie
RE/MAX HIMCON
Himmelsgasse12, 65510 Idstein
Online-ID: 2nd4b53
Referenznummer: 1052-558-19-25
Finde Angebote wie dieses
Hier geht es zu unserem Impressum, den Allgemeinen Geschäftsbedingungen, den Hinweisen zum Datenschutz und nutzungsbasierter Online-Werbung.