Be Part of Berlin Vermittlungs GmbH

Herr Christopher Morys

VIELSEITIGE GEWERBEFLÄCHE / FLEXIBLE COMMERCIAL IN SCHÖNEBERG | PROVISIONSFREI!

€ 5.620,97
Preis/m²
97,67 m²
Bürofläche ca.
k.A.
Teilbare Fläche
4
Zimmer

Der Anbieter dieses Objekts hat gegenüber der AVIV Germany GmbH als Betreiber dieses Online-Marktplatzes erklärt, nicht als Unternehmer im Sinne des § 1 KSchG zu handeln. Die im Verbraucherschutzrecht der Union verankerten Verbraucherrechte (insbesondere Informationspflichten und Rücktritts- bzw. Widerrufsrechte) finden auf den Vertrag zwischen dem Anbieter des Objekts und Ihnen (dem Interessenten) keine Anwendung.

Provisionsfrei
Gewerblicher Anbieter

Der Anbieter dieses Objekts hat gegenüber der AVIV Germany GmbH als Betreiber dieses Online-Marktplatzes erklärt, als Unternehmer im Sinne des § 1 KSchG zu handeln.

AdresseGrunewaldstraße 9
10823 Berlin 
(Schöneberg)
Auf Karte ansehen

Preise & Kosten

Preis/m² € 5.620,97 Kaufpreis € 549.000 Hausgeld € 335

Provision für Käufer

provisionsfrei

Lage

Der Akazienkiez befindet sich im Stadtteil Schöneberg in Berlin. Er ist bekannt für seine lebendige und vielseitige Atmosphäre. Der Kiez erstreckt sich entlang der Akazienstraße und den umliegenden Straßen.

Im Akazienkiez gibt es eine große Auswahl an Restaurants, Cafés, Bars und Geschäften. Die gastronomische Szene...

Mehr anzeigen

Büro-/Praxisfläche

Kategorie

Bürofläche

Baujahr

1893

Bezug

sofort

Geschoss

Erdgeschoss

  • Böden: Holzdielen
  • gepflegt

Energie & Heizung

info

Energieausweis: für diesen Gebäudetyp nicht notwendig

Details

Objektbeschreibung

ATTRAKTIVER ALTBAU IN SCHÖNEBERG!

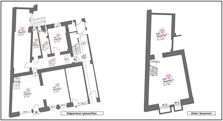
Der 5-geschossige Altbau "Grunewaldstr. 9 / Elßholzstr. 23" stammt aus dem Jahre 1893, befindet sich unter Denkmalschutz und verfügt über rund 20 Wohn- und 7 Gewerbeeinheiten . Es besteht aus zwei Vorderhäusern. Fahrradabstellmöglichkeiten sind im Innenhof gegeben.

Ein...

Mehr anzeigen

Ausstattung

ATTRAKTIVE GEWERBEFLÄCHE SCHÖNEBERG!

Diese Gewerbeeinheit befindet sich in einem gepflegten Zustand. Sie zeichnet sich durch folgende Ausstattungsmerkmale aus:

* Schaufensterfläche
* Praktischer Grundriss
* Keller direkt aus der Einheit zugänglich (ca. 35,78 m²)
* WC
* Dielenfußboden
* Attraktive...

Mehr anzeigen

Weitere Informationen

Sonstiges
Bei Erwerb der Immobilie fällt keine zusätzliche Provision für den Käufer an!

Dieses Angebot ist freibleibend, sämtliche Angaben dieses Angebots basieren auf Angaben des Eigentümers. Eine Haftung für Richtigkeit und Vollständigkeit kann daher nicht übernommen werden.

Wir freuen uns von Ihnen zu...

Mehr anzeigen

Anbieter der Immobilie

Partner

Be Part of Berlin Vermittlungs GmbH

im Durchschnitt  4,90  Sterne
(bei 15 Bewertungen)

Kurfürstendamm 177, 10707 Berlin

Geschäftszeiten
user

Herr Christopher Morys

Dein Ansprechpartner

Anbieter-Website Anbieter-Profil Anbieter-Impressum

Online-ID: 2ndcz56

Referenznummer: ABA105_00002_B.4

Finde Angebote wie dieses

imageimageimage

Hier geht es zu unserem Impressum, den Allgemeinen Geschäftsbedingungen, den Hinweisen zum Datenschutz und nutzungsbasierter Online-Werbung.